135 000 €2 005 m²

Ivalontie 22, Ivalo, Inari

Myyntihinta
135 000 €
Pinta-ala
2 005 m²
Huoneita
0
Toimitilan tyyppi
Liiketila
Kaupunginosa
Ivalo
Kaupunki
Inari

Myynnissä vuonna 2006 valmistunut, lamellihirrestä rakennettu ravintolarakennus omalla tontilla, aivan Ivalon keskustassa.

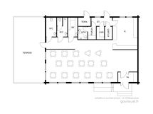
Rakennus on toiminut koko historiansa ajan ravintolana tai kahvilana, joten se tarjoaa erinomaiset puitteet uudelle yrittäjälle. Tilava ja valoisa ravintolasali mahdollistaa monenlaisten liikeideoiden toteuttamisen. Keittiö on käytännöllinen ja hyvin varusteltu. Lisäksi tiloihin kuuluu kaksi asiakas-WC:tä (joista toinen inva-WC), henkilökunnan wc/pesuhuone, varastotila sekä suuri terassi, joka laajentaa asiakastilaa kesäisin.

Sijainti on erinomainen — kiinteistö on helposti saavutettavissa ja hyvin näkyvällä paikalla Ivalon keskustassa. Samalla paikalla on harjoitettu ravintolatoimintaa jo 1970-luvulta, joten sijainti on tunnettu ja vakiintunut. Tontilla on rakennusoikeutta noin 800 m².

Kohde on heti vapaa uusille ideoille. Sovi oma esittelyaikasi: puh. 0400 967297

Perustiedot

Sijainti
Ivalontie 22, 99800 Inari
Kaupunginosa
Ivalo
Kohdenumero
45941216
Toimitilan tyyppi
Liiketila
Tilan pinta-ala
2 005 m²
Tontin pinta-ala
2 005 m²
Huoneita
0
Asumistyyppi
Omistus
Palvelut
Kaikki palvelut lähellä, lentoasema n. 10 km.
Kohde on
Kiinteistö
Kiinteistötunnus
148-403-31-195
Postitoimipaikka
Ivalo

Hinta

Myyntihinta
135 000 €

Talon ja tontin tiedot

Tilan nimi
Fixus piste
Rakennuksen tyyppi
Liiketila
Energialuokka
Ei lain edellyttämää energiatodistusta
Tontin koko
2 005 m²
Kaavoitustiedot
Asemakaava. Inarin kunta Kaavoitusinsinööri Venla Jomppanen. Kaavamerkintä on AM, mikä tarkoittaa moottoriajoneuvojen huoltoasemien korttelialuetta
Rakennusoikeus
2005m²
Pihan kuvaus
Pihalla on entisen jakeluaseman katos, pumput on poistettu.
Tontin omistus
Oma

Tilat ja materiaalit

Ominaisuudet
Sähköliittymä, Kaukolämpösopimus, Vesiliittymä

Tekniset tiedot

Vesi ja jätevesi
Kunnan vesijohto
Viemäröinti
Kunnan