2 000 m²

Satamatie 12, Heinola

Pinta-ala
2 000 m²
Kerros
1
Toimitilan tyyppi
Varastotila
Kaupunki
Heinola

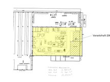
Juuri vapautunut 2000 m2 noin 5,5 metriä korkea hallitila, jossa 2 yhteiskäyttöistä lastaustaskua ja yksi oma lastaustasku. Pieni toimistotila varaston yhteydessä. Tila on yhdistettävissä 1500 m2 (korkeaan) ja 1000 m2 matalampaan (5,5 m) varastotilaan. Kiinteistössä on vuokrattavissa toimistoilaa. Kiinteistössä on sosiaalitilat. Pihalla on erittäin paljon pysäköintitilaa.

Lisätietoja ja esitellyt kohteesta Kari Mäkinen 0400 891 057/ 020 7290 710. Lisää kohteita www.premises.fi

Kohteella ei ole lain edellyttämää energiatodistusta tai energialuokka ei tiedossa.

Perustiedot

Sijainti
Satamatie 12, 18100 Heinola
Kerros
1
Toimitilan tyyppi
Varastotila
Tilan pinta-ala
2 000 m²
Kokonaispinta-ala
2 000 m²
Lisätiedot
Lastaustaskut: 1 kpl Varaston korkeus: 5 m
Kiinteistötunnus
111-23-5-2
Tiedustelut
Ota yhteyttä 020 7290 710 tai asiakaspalvelu@premises.fi
Postitoimipaikka
Heinola

Hinta

Vuokra/kk

Talon ja tontin tiedot

Uudiskohde
Ei
Rakennuksen tyyppi
Varastotila