226 m²

Valimotie 13 b, Pitäjänmäki, Helsinki

Pinta-ala
226 m²
Kerros
2 / 6
Toimitilan tyyppi
Toimistotila
Kaupunginosa
Pitäjänmäki
Kaupunki
Helsinki

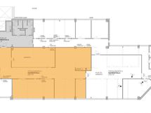
Toimistokokonaisuus 226 m² Valimotie 13b:n toisessa kerroksessa. Tila sisältää jyvitetyn aulatilan, jossa myös wc-tilat sekä toimisto-osan, joka on pääosin avotoimistoa. Tilassa ääntä vaimentava ja mukavuutta tuova harmaa tekstiilipalamatto.

Toteutamme tilaan tarvittaessa remontit ja tilamuutokset vuokralaisen toiveiden mukaisesti. Suunnittelemme muutostyöt aina asiakaskohtaisesti vuokraneuvottelujen yhteydessä.

Rappukäytävässä henkilöhissin lisäksi myös tilava tavarahissi.

Katso videoesittely Valimo Centeristä: https://youtu.be/W4-0X0CgEa0

Tästä kohteesta voit olla yhteydessä pääkaupunkiseudun vuokrauspäällikköömme Artoon. Puh. 044 906 2226 / Arto Haavisto

Perustiedot

Sijainti
Valimotie 13 b, 00380 Helsinki
Kaupunginosa
Pitäjänmäki
Kerros
2 / 6
Toimitilan tyyppi
Toimistotila
Tilan pinta-ala
226 m²
Kokonaispinta-ala
226 m²
Lisätietoa vapautumisesta
Sopimuksen mukaan.

Hinta

Vuokra/kk

Talon ja tontin tiedot

Rakennuksen kuvaus
Valimotie 13b pitää sisällään kustannustehokasta toimistotilaa, isojakin kokonaisuuksia, joista saa helposti muunneltua omansa nykytarpeiden mukaiseksi. Kaikkiin kuuteen kerrokseen pääsee kulkemaan henkilöhissin lisäksi myös tilavalla tavarahissillä ja sen lisäksi katutasosta löytyy korkeussäädettävä lastauslaituri kuormien purkuun.
Rakennuksen tyyppi
Toimistotila
Rakennusvuoden lisätiedot
1987
Kerroksia
6
Hissi
Kyllä
Liikenneyhteydet
Rakennus sijaitsee keskeisellä paikalla pääkaupunkiseudulla. Juna, Jokerilinja sekä bussiyhteydet ovat talon vieressä. Valimon asemalle kävelee viidessä minuutissa ja keskustaan sekä lentoken

Tilat ja materiaalit

Pysäköintitilan kuvaus
Kiinteistöissämme on pysäköintitilaa valimolaisille, lisäksi käytössä on 8 vieraspaikkaa. Valimotie 10:n pihassa sijaitsevat maksulliset pysäköintiruudut, Valimotie 13b:hen pysäköit parkk