100 m²

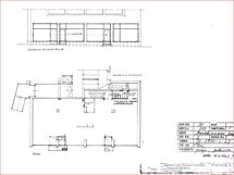
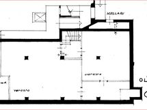
Munkkiniemen puistotie 5, Munkkiniemi, HelsinkiKatutason liiketila ja alakerran varasto

Pinta-ala
100 m²
Kerros
1
Rakennusvuosi
1952
Toimitilan tyyppi
Liiketila
Kaupunginosa
Munkkiniemi
Kaupunki
Helsinki

Siisti liiketila noin 100m2 ja alakerran varasto noin 95m2 korkea tila isot ikkunat

Munkkiniemen puistotie 5 on vapaana liiketila noin 100m2 ja alakerran varasto noin 95m2. Liiketilassa on isot näyteikkunat ja tila on korkea ja valoisa ja tilasta johtaa alakerran varastoon rappuset ja varastoa on noin 95m2. Tavaraa saa varastoo katutasolta luukusta josta likuna tilaan tai liiketilan kautta. Tilassa on 1 wc ja vesipiste.

Vuokrataso on edullinen koska vuokralainen voi tehdä muutoksia kustannuksellaan tilaan, joista sovitaan omistajan kanssa. Ehkä onnistuisi tehdä 2 wc tilaan ym.

Tilaan haetan perinteistä liiketilan ja / tai kauppan alan yritystä, sillä ravintolaa ei tilaan saa, ehkä kavilan voisi ? mutta ei mitään ruan valmistusta, se ei onnistu.

Sovi tilan katselmus ja katso kuvat.

Juselius Harry KTM, LKV, KJs 0400 208 419 harry.juselius@toimitilapalvelu.fi

Kaartinen Pentti Ekonomi 050 337 8148 pentti.kaartinen@toimitilapalvelu.fi

Aarno Toffer Merkonomi 044 978 1393 aarno.toffer@toimitilapalvelu.fi

www.toimitilapalvelu.fi

Perustiedot

Kaupunginosa
Munkkiniemi
Kohdenumero
24278784
Kerros
1
Toimitilan tyyppi
Liiketila
Tilan pinta-ala
100 m²
Kokonaispinta-ala
195 m²
Huoneiston kokoonpano
Katutason liiketila ja alakerran varasto

Hinta

Vuokra/kk
Lisätietoa vakuudesta
3 kk vuokran määrä

Talon ja tontin tiedot

Rakennuksen tyyppi
Liiketila
Rakennusvuosi
1952
Liikehuoneistojen lukumäärä
1
Liikehuoneistojen pinta-ala
100 m²
Lisätietoja lämmityksestä
Vesikeskuslämmitys
Lisätietoja talosta
Siirry talosivulle