1,55 ha

Hakakalliontie 13, Hakakallio, Hyvinkää

Pinta-ala
1,55 ha
Toimitilan tyyppi
Varastotila
Kaupunginosa
Hakakallio
Kaupunki
Hyvinkää

Varasto-/ tuotantotilaa Hyvinkäältä

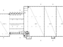
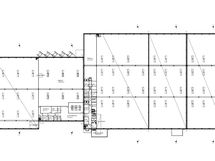
Vuokrattavana 15466 m² varasto- / tuotantotilaa Hyvinkään Hakakallion teollisuusalueella. Yhtenäinen, korkea halli sekä kahteen kerrokseen sijoittuvat toimisto-, neuvottelu- ja sosiaalitilat. 12 lastaustaskua, lastaussilta kahdella nosto-ovella sekä ajoramppi.

Tämä kohde toteutetaan joustavasti tilanhakijan tarpeiden mukaan, tarjoten mahdollisuuden suunnitella tilat juuri yrityksenne toimintaan sopiviksi.

Tila soveltuu monipuolisesti teollisuus-, logistiikka- tai varastokäyttöön. Suuri piha palvelee raskasta liikennettä ja pysäköintiä. Tilat voidaan jakaa ja vuokrata yhdelle tai useammalle käyttäjälle.

Erinomainen sijainti tukee tehokasta logistiikkaa ja sijainti Valtatie 25:n varrella, lähellä E12-moottoritietä, takaa nopeat yhteydet pääkaupunkiseudulle, sisämaahan ja satamiin.

Tervetuloa tutustumaan, varaathan välittäjältä oman esittelyaikasi. Voit kysyä meiltä myös muita sopivia vaihtoehtoja, kauttamme löydät juuri Teidän tarpeisiinne sopivat tilat.

Palvelumme on tilanhakijalle veloitukseton!

Perustiedot

Kaupunginosa
Hakakallio
Toimitilan tyyppi
Varastotila
Tilan pinta-ala
1,55 ha
Kokonaispinta-ala
1,55 ha
Postitoimipaikka
Hyvinkää

Hinta

Vuokra/kk

Talon ja tontin tiedot

Rakennuksen tyyppi
Varastotila

Tilat ja materiaalit

Pysäköintitilan kuvaus
Pihalla