304 € / kk32 m²

Uudenmaankatu 8-10, Keskusta, Hyvinkää1h + avok + wc

Vuokra/kk
304 € / kk
Pinta-ala
32 m²
Huoneita
1
Kerros
3 / 3
Toimitilan tyyppi
Liiketila
Kaupunginosa
Keskusta
Kaupunki
Hyvinkää

Huippusijainnilla pääkadun varrelta toimitilat

Vuokrataan Hyvinkään keskustasta pääkadun varrelta linjalan rakennuksesta siisti liike-/toimitila 32 m² jossa myös pieni oma wc + keittiötila ja vesipiste.

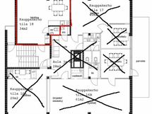
Tilat sijaitsevat ylimmässä 3-kerroksessa (ei hissiä). Ikkunat ovat rauhallisen sisäpihan puolelle.

Vuokrataan edullisesti 9,5 eur / m².

Huippu sijainti, kaikki palvelut kuten kaupat, ravintolat ym. lähellä. Rautatieasemalle matkaa noin 200 m. Edullinen kaukolämpö. Nopeat kuituyhteydet netille.

Vuokra 304 eur/kk.

Tässä tilassa voit toimia huoletta pidempäänkin sillä taloyhtiössä on kaikki isot remontit kuten putkiremppa jo tehty.

Pohjakuvassa tila on rajattu punaisella.

Heti vapaa!

Näyttö onnistuu sopimuksen mukaan.

Perustiedot

Sijainti
Uudenmaankatu 8-10, 05800 Hyvinkää
Kaupunginosa
Keskusta
Kohdenumero
24323890
Kerros
3 / 3
Toimitilan tyyppi
Liiketila
Tilan pinta-ala
32 m²
Huoneiston kokoonpano
1h + avok + wc
Huoneita
1
Keittiö
Avokeittiö
Vuokralaistyyppi
Päävuokralainen
Lemmikkieläimet sallittu
Ei
Muut ehdot
Tupakointi kielletty

Hinta

Vuokra/kk
304 € / kk
Vakuus
608 €
Lisätietoa vakuudesta
2 kk vuokraa vastaava määrä
Vuokra-aika
Toistaiseksi voimassa oleva

Muut maksut

Vesimaksu
5 € / kk
Sähkömaksu
Vuokralainen tekee sähkösopimuksen

Talon ja tontin tiedot

Rakennuksen tyyppi
Liiketila
Kerroksia
3