495 € / kk84 m²

Yrittäjänkulma 5, Klaukkala, NurmijärviTarjolla myös myymälä- ja toimistotilaa!

Vuokra/kk
495 € / kk
Pinta-ala
84 m²
Kerros
1
Toimitilan tyyppi
Varastotila
Kaupunginosa
Klaukkala
Kaupunki
Nurmijärvi

Vuokrattavana varastotilaa hallirakennuksesta Klaukkalassa!

Nurmijärven Klaukkalassa teollisuusalueella on vuokrattavana isosta hallirakennusta laadukas varastotila. Tilat ovat olleet autovaraosia myyvän yrityksen käytössä pitkään.

Huipputarjous! 3 ensimmäistä kk -50% normaalivuokrahinnasta!

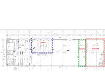
Myymälän vieressä vuokrattavana korkea varastohallitila pinta-alaltaan 84 m² (pohjakuvassa vihreällä katkoviivalla). Hallin korkeus vaihtelee 6-8 metrin välillä ja tilan leveys on 4,5 metriä sekä pituus 18,5 metriä. Hallitila on läpiajettava ja nosto-ovien koko on L3,5 m x K 4,5 m. Hallista lisäksi sisäkautta kulku myymälätilaan (isot pariovet). Halli soveltuu hyvin moneen varastointiin eikä siellä ole vesipistettä eikä lattiakaivoja. Mikäli hallitila vuokrataan ilman viereistä myymälätilaa, estetään kulku tilojen välillä.

Lisäksi on tarjolla seuraavasti;

Katutason myymälä 240 m² ja toimistotila 2 krs noin 140 m² kuukausivuokrahinta alkaen 1495 €/kk +alv (tarjoushinta 3kk alkuun) normaalihinta 2’990 € + alv

Mahdollisuus myös vuokrata kokonaisuutena (kaikki vapautuvat tilat) hintaan 3495 €/kk + alv kolme ensimmäistä kuukautta (tarjous ei koske autopesulahallia, kaikkien tilojen yhteishinta 3kk jälkeen norm. 6’990 €/kk + alv).

Myymälä on hyväkuntoinen ja valoisa 240 m², jossa isot ikkunat ja täten hyvä näkyvyys! Pohjakuvaan myymälän ja toimiston tila merkittynä punaisella katkoviivalla. Takaosasta löytyy lisäksi wc-tila ja vesipiste. Myymälätilan yläpuolella lisäksi toimistotilaa 140 m². Toimiston yhteydessä minikeittiö, suihku ja wc-tilat.

Samassa rakennuksessa toimii myös autopesula, joka on vuokrattu!

Vuonna 2011 rakennetussa betonielementtihalli-hallissa on lämmitysmuotona kaukolämpö. Lämmitys sisältyy vuokraan. Vuokralainen vastaa sähkö- ja vesimaksuista sekä jätehuollon kuluista että järjestelyistä. Pesuhallin osalta vuokralainen vastaa lisäksi tilojen ylläpidosta (valaisinhuolto, ovihuolto ja korjaukset sekä hiekanerotuskaivojen ja öljynerotuskaivon tyhjennyksen (min. 1 krt/vuosi)).

Tilat ovat heti vapaat!

Rakennuksen piha on asfaltoitu ja aidattu. Aidassa on sähkötoiminen portti. Vuokralaiselle kuuluu pari autopaikkaa pihassa.

Tilat voidaan vuokrata erikseen tai kokonaisuutena – monien mahdollisuuksien tila vuokrattavana!

Kohdetiedot

Sijainti Katuosoite: Yrittäjänkulma 5, 01800 Nurmijärvi Kaupunginosa: Klaukkala Ympäristö: Teollisuusalue

Rakennus/huoneisto Pinta-ala: 84 m² Huoneistoselitelmä: Hallitila varastokäyttöön Kunto, varusteet ja palvelut: Hyväkuntoiset tilat. Isot sähkökäyttöiset nosto-ovet. Korkeus: 6 metriä Vapautuu: Heti vapaa Pysäköinti: Erikseen sovitusti pihassa

Vuokrahinta ja kulut Kuukausivuokra: Alkaen 495 €/kk + alv (norm. 990 €/kk + alv) Sähkö: Vuokralaisen lukuun mittauksen mukaan Lämmitys: Sisältyy vuokraan Jätehuolto: Vuokralainen vastaa kuluista ja järjestelyistä Muut ehdot: Minimisopimuskausi 12 kk, vakuus 3 kk:n vuokraa vastaava summa ja luottotietojen on oltava kunnossa

Perustiedot

Kaupunginosa
Klaukkala
Kohdenumero
24280011
Kerros
1
Toimitilan tyyppi
Varastotila
Tilan pinta-ala
84 m²
Huoneiston kokoonpano
Tarjolla myös myymälä- ja toimistotilaa!
Kunto
Hyvä
Kunnon lisätiedot
Hyväkuntoiset tilat!
Lisätietoa vapautumisesta
Heti vapaa
Vuokralaistyyppi
Päävuokralainen

Hinta

Vuokra/kk
495 € / kk
Lisätietoa vakuudesta
3kk vuokraa vastaava summa
Vuokra-aika
Toistaiseksi voimassa oleva. Ensimmäinen irtisanomisajan ajankohta 12 kuukauden kuluttua

Muut maksut

Lämmityskustannukset
Sisältyy vuokraan
Vesimaksun lisätiedot
Ei vesipistettä tilassa
Sähkömaksu
Vuokralainen tekee sähkösopimuksen

Talon ja tontin tiedot

Rakennuksen tyyppi
Varastotila