425 m²

Uunikatu 14, Tiiliruukki, Pori

Pinta-ala
425 m²
Rakennusvuosi
2002
Toimitilan tyyppi
Liiketila
Kaupunginosa
Tiiliruukki
Kaupunki
Pori

Siistikuntoinen toimitila!

Siistikuntoinen toimitila Tiiliruukista! Hyvällä sijainnilla Tiiliruukissa 425m² toimitila! Toimisto ja taukotilat ovat kauttaaltaan siistikuntoiset. Taukohuoneessa keittiö sekä samassa yhteydessä wc. Toiselle wc:lle myös varaus. Tilassa on 4 ilmalämpöpumppua ja lattialämmitys kauttaaltaan koko tilassa.

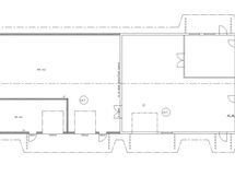
Tilassa on mm. kolme (3) nosto-ovea, toimistotiloja, sosiaalitilat ja asfaltoitu piha-alue. Kiinteistön tontilla hyvin pysäköintitilaa!

Erinomainen sijainti kaupallisella alueella ja hyvät logistiset yhteydet valtaväylille! Ominaisuuksia: 3 nosto ovea 3 öljynerotuskaivoa Koneellinen ilmanvaihto 4 ilmalämpöpumppua Lattialämmitys kauttaaltaan Tuotanto / hallitilaa Toimistotilaa sekä sosiaalitilat, 1 wc valmiina ja varaus toiselle 3 metriä sisäkorkeus ‍Mahdolliset saneeraus- ja muutostyöt ovat sovittavissa.

Vapautuu sopimuksen mukaan. Vuokrasopimuksen pituus, sisältö ja saneerausvaatimukset vaikuttavat vuokran suuruuteen. Vuokra ALV 0%, arvonlisäveroa EI lisätä vuokraan.

Ota yhteyttä ja käydään katsomassa!

Jos tämä tila ei vaikuta sopivalta, niin ole yhteydessä ja anna meidän auttaa toimitilaratkaisuissa. Löydämme teille varmasti sopivat tilat verkostomme kautta.

Perustiedot

Sijainti
Uunikatu 14, 28610 Pori
Kaupunginosa
Tiiliruukki
Kohdenumero
23660981
Kerroksien lukumäärä
1
Toimitilan tyyppi
Liiketila
Tilan pinta-ala
425 m²

Hinta

Vuokra/kk
Lisätietoa vakuudesta
Sopimuksen mukaan

Muut maksut

Lämmityskustannukset
Lämmitys ei sisälly vuokraan, Sähkölämmitys
Vesimaksun lisätiedot
Kulutuksen mukaan
Sähkömaksu
Vuokralainen tekee sähkösopimuksen

Talon ja tontin tiedot

Rakennuksen tyyppi
Liiketila
Rakennusvuosi
2002
Liikehuoneistojen lukumäärä
0
Liikehuoneistojen pinta-ala
0 m²
Kerroksia
1
Lisätietoja lämmityksestä
Suora sähkölämmitys
Tontin omistus
Vuokralla