12 € / kk426 m²

Piispankatu 34, 1 kaupunginosa, Porvoo11,90 €/m²/kk + alv

Vuokra/kk
12 € / kk
Pinta-ala
426 m²
Kerros
2 / 3
Rakennusvuosi
1988
Toimitilan tyyppi
Toimistotila
Kaupunginosa
1 kaupunginosa
Kaupunki
Porvoo

Vuokrataan iso toimistotila Porvoon keskustassa!

Nyt on vuokrattavana hyväkuntoinen toimistotila ison liikerakennuksen toisesta kerroksesta. Tila sijaitsee keskustan kaikkien palveluiden keskellä ja toimii erinomaisesti yrityksen toimisto- tai vastaanottotilana!

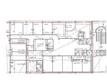
Tila on pinta-alaltaan 426 m²:n ja siellä on toimistohuoneita, avoin eteisaula, keittiö, wc, suihku sekä siivouskomero. Tila on kehystetty pohjakuvaan punaisella värillä. Huoneistossa on paljon kevyitä väliseiniä, joita mahdollisuus tarvittaessa purkaa/siirtää. Kaikista tilaan tarvittavista muutostöistä on kuitenkin sovittava erikseen. Ikkunoita on paljon ja huoneet ovat valoisat ja niistä näkymää Piispankadulle.

Esteetön sisäänkäynti Piispankadulta. Talossa on henkilöhissi ja tyylikäs katutason sisääntuloaula. Samassa rakennuksessa myös tarvittaessa vuokrattavana runsaasti lisää toimitilaa, kysy tästä tarvittaessa lisää!

Keskustan kaikki palvelut lähellä ja kadulla maksullisia parkkipaikkoja. Rakennuksen parkkihallissa myös vuokrattavana parkkihallipaikkoja erikseen sovitusti.

Erinomainen toimistotila keskeisellä sijainnilla Porvoon keskustassa!

Kohdetiedot

Sijainti Katuosoite: Piispankatu 34, 06100 Porvoo Kaupunginosa: Keskusta Ympäristö: Keskusta, myymälärakennuksia

Rakennus/huoneisto Pinta-alat: 426 m² Kiinteistötyyppi: Liikerakennus Rakennusvuosi: 1988 Tilatyyppi: Toimistotila Kunto, varusteet ja palvelut: Hyvä kunto, toimistohuoneita, keittiö, useampi wc ja suihku sekä siivouskomero/varastohuone Lämmitys: Kaukolämpö Vapautuu: Heti vapaa

Vuokrahinta ja kulut Kuukausivuokra: 11,90 €/m²/kk + alv Sähkö- ja vesimaksu: Sähkö ja vesi kulutuksen mukaan Lämmitys: Sisältyy vuokraan Muuta: Vakuus 3kk vuokraa vastaava summa, minimisopimus 12kk ja luottotietojen on oltava kunnossa

Perustiedot

Sijainti
Piispankatu 34, 06100 Porvoo
Kaupunginosa
1 kaupunginosa
Kohdenumero
24278563
Kerros
2 / 3
Toimitilan tyyppi
Toimistotila
Tilan pinta-ala
426 m²
Huoneiston kokoonpano
11,90 €/m²/kk + alv
Kunto
Hyvä
Lisätietoa vapautumisesta
Heti vapaa
Vuokralaistyyppi
Päävuokralainen

Hinta

Vuokra/kk
11,90 € / kk
Lisätietoa vakuudesta
3kk vuokraa vastaava summa
Vuokra-aika
Toistaiseksi voimassa oleva. Ensimmäinen irtisanomisajan ajankohta 12 kuukauden kuluttua

Muut maksut

Lämmityskustannukset
Sisältyy vuokraan
Vesimaksun lisätiedot
Sähkö ja vesi kulutuksen mukaan

Talon ja tontin tiedot

Rakennuksen tyyppi
Toimistotila
Rakennusvuosi
1988
Liikehuoneistojen lukumäärä
0
Liikehuoneistojen pinta-ala
0 m²
Kerroksia
3
Lisätietoja lämmityksestä
Vesikeskuslämmitys
Tontin omistus
Oma