1 706 m²

Nuutisarankatu 35, Tampere

Pinta-ala
1 706 m²
Kerros
1 / 1
Toimitilan tyyppi
Liiketila
Kaupunki
Tampere

Vuokrataan varasto (liiketila) 1706 m²

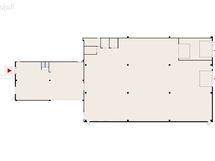
Vuokrattavissa avara ja valoisa katutason toimitilakokonaisuus Tampereen Sarankulman teollisuus- ja liikealueella, Läntisen kehätien varrella. Kiinteistössä on mahdollista yhdistää kaksi erillistilaa yhdeksi kokonaisuudeksi pohjakuvassa esitetyllä tavalla, jolloin yhdistetty tila mahdollistaa hyvin monipuoliset toiminnot yhdessä kerroksessa ja tilassa. Yhdistetty toimitila soveltuu niin varasto- ja tuotantotilaksi kuin liiketilaksi ja toimistoksi. Tilojen vapaa korkeus on varasto-/tuotantotilan puolella 7 m ja liike-/toimisto-/huoltotilan puolella 5 m. Varasto-osaan johtaa kaksi korkeaa nosto-ovea talon takapihalta.

Vuokraan lisätään alv + kulut.

Ota yhteyttä ja kysy lisää! www.blanctoimitilat.fi

Masa Hakala masa.hakala@blanckiinteisto.com +358 40 964 2482

Perustiedot

Kohdenumero
80478061
Kerros
1 / 1
Toimitilan tyyppi
Liiketila
Tilan pinta-ala
1 706 m²
Kokonaispinta-ala
1 706 m²
Kohde on
Kiinteistö
Postitoimipaikka
Tampere

Hinta

Myyntihinta
Vuokra/kk

Talon ja tontin tiedot

Uudiskohde
Ei
Rakennuksen tyyppi
Liiketila
Kerroksia
1