240 000 €485 m²

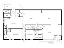
Mäntytie 12, Ruutana, Kangasala2xsali, kahvio, keittiö, toimisto, 3xkokoustila, 4xwc,

Myyntihinta
240 000 €
Pinta-ala
485 m²
Kerros
1 / 1
Rakennusvuosi
1988
Toimitilan tyyppi
Liiketila
Kaupunginosa
Ruutana
Kaupunki
Kangasala

Monien mahdollisuuksien liikekiinteistö Ruutanassa, Kangasalla!

Tämä noin 485 m² kokoinen liikekiinteistö sijaitsee omalla 2190 m² tontilla Ruutanassa, Kangasalla. Kiinteistö tarjoaa erinomaiset puitteet erilaisille toiminnoille, ja sen tilat on tällä hetkellä vuokrattu useille eri toimijoille. Tämä tekee siitä valmiin ja toimivan sijoituskohteen.

Erityisen houkuttelevan kiinteistöstä tekee vireillä oleva kaavamuutos, jonka myötä alueelle on suunnitteilla junapysäkki. Tulevaisuudessa sijainti tarjoaa entistäkin paremman saavutettavuuden ja houkuttelevuuden niin yrityksille kuin asiakkaille.

Tilava tontti ja monipuolinen rakennus tarjoavat joustavuutta erilaisten toimintojen järjestämiseen tai uuden kehittämiseen. Kiinteistö sopii erinomaisesti niin nykyisen liiketoiminnan jatkamiseen kuin uudistamiseen.

Tartu mahdollisuuteen ja tutustu tähän potentiaaliseen kohteeseen, joka yhdistää nykyiset vuokratulot ja tulevaisuuden kehitysnäkymät!

Sovi oma esittelysi joustavasti.

Myynti ja tiedustelut: Johanna Toukola 0440 789 657 johanna.toukola@neliotliikkuu.fi

Perustiedot

Sijainti
Mäntytie 12, 36110 Kangasala
Kaupunginosa
Ruutana
Kohdenumero
21338524
Kerros
1 / 1
Toimitilan tyyppi
Liiketila
Tilan pinta-ala
485 m²
Tontin pinta-ala
2 190 m²
Kokonaispinta-ala
485 m²
Pinta-alojen lisätiedot
Liiketilan kokonaispinta-ala on myyjän ilmoituksen mukaan 485 m². Edellä mainittu pinta-ala saattaa tämän ikäisessä kohteessa poiketa olennaisestikin huoneiston nykyisten mittaustapojen ja standardien mukaan laskettavasta pinta-alasta. Liiketilan todellinen pinta-ala voi siis olla esitteessä mainittua pienempi tai suurempi.
Huoneiston kokoonpano
2xsali, kahvio, keittiö, toimisto, 3xkokoustila, 4xwc,
Kunto
Hyvä
Lisätietoa vapautumisesta
sopimuksen mukaan
Asumistyyppi
Omistus
Vuokrattu
Kyllä
Lisätiedot
Sähköliittymä.
Kohde on
Kiinteistö
Kiinteistötunnus
211-436-2-83

Hinta

Myyntihinta
240 000 €
Kiinnitykset
200000

Muut maksut

Muut kustannukset
Muut maksut: Tilat vuokrattu eri toimijoille. Lisätietoa välittäjältä.
Kiinteistövero
765,82 €/v

Talon ja tontin tiedot

Uudiskohde
Ei
Tilan nimi
RUUTANAN LIIKEKESKUS
Rakennuksen tyyppi
Liiketila
Rakennusvuosi
1988
Kerroksia
1
Rakennusmateriaali
tiili, teräs
Kattomateriaali
Pelti
Kattotyyppi
Harja
Energiatodistus
Ei lain edellyttämää energiatodistusta
Tontin koko
2 190 m²
Kaavoitustiedot
ALO=omakoti- ja liikennerakennusten korttelialue. 1) Asemakaava (ohjeellinen tonttijako) Vireillä Ruutana-Tarastenjärvi-Asema osayleiskaava kaava nro 26
Kaavatilanne
Asemakaava
Rakennusoikeus
547.5 m2. e-luku: 0.25
Lisätietoa rakennusoikeudesta
Käytetty rakennusoikeus 474m2 + 11m2 Kangasalan kaupunki
Lämmitys
Sähkö, Ilmalämpöpumppu
Lämmönjakelu
Sähköpatterilämmitys
Tontin omistus
Oma

Tekniset tiedot

Viemäröinti
kunnan