249 000 €540 m²

Laukaantie 15, Keskusta, Laukaa4 erill asuntoa, 2 liiketilaa, kell.tilat

Myyntihinta
249 000 €
Pinta-ala
540 m²
Huoneita
0
Kerros
2 / 2
Toimitilan tyyppi
Muu tila
Kaupunginosa
Keskusta
Kaupunki
Laukaa

Laukaan keskustasta oma pienkerrostalo. Omalla 1200 m2 kaavatontilla v. 1959 rakennettu pienkerrostalo, jossa katutasossa kaksi liiketilaa, 2.kerroksessa neljä asuinhuoneistoa (1h,kk 32m2, 2h,kk 42m2, 2h,k 66m2 ja 3h,k 70 m2. Kellarikerroksessa saunatilat, varastotilaa ja myymälätila. Kaikki tilat vuokrattu, lukuunottamatta kellaritilaa. Rakennukseen on uusittu v. 2018 koko kattorakenne eristeineen ja kattotuoleineen, hybridilämmitys vesi-ilmalämpö, rinnalla öljy. Asunnoista 66 m2 asunto on remontoitu kattavasti, muut peruskuntoisia, mutta toimivia. Hyvätuottoinen kohde, pyydä tarkemmat tiedot. Sopii sijoittajalle erinomaisesti! Pyydä tarkemmat laskelmat.

Perustiedot

Sijainti
Laukaantie 15, 41340 Laukaa
Kaupunginosa
Keskusta
Kohdenumero
611000
Kerros
2 / 2
Toimitilan tyyppi
Muu tila
Tilan pinta-ala
540 m²
Tontin pinta-ala
1 200 m²
Kokonaispinta-ala
540 m²
Huoneiston kokoonpano
4 erill asuntoa, 2 liiketilaa, kell.tilat
Huoneita
0
Lisätietoa vapautumisesta
vuokrattu
Asumistyyppi
Omistus
Tilan jakaminen
Tila on jaettavissa.
Lisätiedot
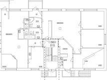
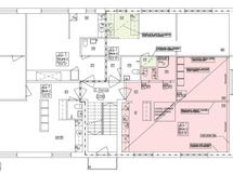
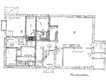
Tilajako: Katutasossa 2 liiketilaa; n. 145 m2 ja 90 m2. Toisessa kerroksessa neljä asuntoa: As1 2h,k 66m2, As2 2h,kk 42m2, As3 1h,k4 33m2, As4 3h,k 70 m2. Kellarikerroksessa saunatilat, varastotilat ja hyödynnettävissä oleva myymälätila. Kerrosalaksi on ilmoitettu n. 540m2 (ilman kellaria), ei tarkistusmitattu. Tehdyt remontit: v. 2017 ilma-vesilämpöpumppu asennettu (öljy rinnalla), varaaja uusittu, kattorakenteet uusittu kokonaan v. 2018 tulipalon jäljiltä, asuntojen pintoja uusittu (laajimmin asunto 1) Osittain sähkö- vesi ja viemäriremonttia
Kohde on
Kiinteistö
Ensiesittelyssä
Ei
Postitoimipaikka
LAUKAA

Hinta

Myyntihinta
249 000 €

Muut maksut

Muut kustannukset
kiinteistön vuosikulut ovat olleet n. 20.000-25.000 €/v, sisältäen sähkö, vesi, öljy, jätehuolto, kiinteistönhuolto, kiinteistövero, vakuutus, pienet korjaukset)

Talon ja tontin tiedot

Uudiskohde
Ei
Rakennuksen tyyppi
Muu tila
Kerroksia
2
Tontin koko
1 200 m²
Kaavatilanne
asemakaava, kaavamerkintä ALK eli yhdistettyjen liike- ja asuntokerrostalojen korttelialue.
Lämmitys
Muu
Lämmönjakelu
Muu
Kunnan numero
410
Tontin omistus
Oma