189 000 €320 m²

Ratastie 10, Teollisuuskylä, Muuramehallitila, k, 3 tstoa, saunatilat, neuvotteluh

Myyntihinta
189 000 €
Pinta-ala
320 m²
Huoneita
0
Toimitilan tyyppi
Tuotantotila
Kaupunginosa
Teollisuuskylä
Kaupunki
Muurame

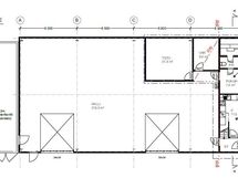
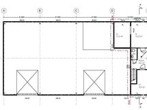
Muuramen teollisuuskylässä v. 1985 rakennettu siistikuntoinen ja ryhdikäs teollisuushalli. Rakennuksessa on yhtenäistä hallitilaa (halliin tehty myös erillinen neuvotteluhuone). Päädyssä katutasossa keittiö-/taukotila sekä saunatilat. Päätyyn, toiseen kerrokseen on tehty lisäksi kolme toimistohuonetta. Hyvä varustetaso; ilmalämpöpumppulämmitys hallitilassa, voimavirta, nosturi 0,5 tn, koneellinen iv, paineilmaverkosto. Oma asfaltoitu tontti, jossa rakennusoikeutta jäjellä runsaasti (käyttämättä n.850 kem2). Heti vapaa! Sovi esittely.

Perustiedot

Sijainti
Ratastie 10, 40950 Muurame
Kaupunginosa
Teollisuuskylä
Kohdenumero
600347
Toimitilan tyyppi
Tuotantotila
Tilan pinta-ala
320 m²
Tontin pinta-ala
2 528 m²
Kokonaispinta-ala
320 m²
Huoneiston kokoonpano
hallitila, k, 3 tstoa, saunatilat, neuvotteluh
Huoneita
0
Lisätietoa vapautumisesta
Heti
Asumistyyppi
Omistus
Tilan jakaminen
Tila ei ole jaettavissa.
Kohde on
Kiinteistö
Ensiesittelyssä
Ei
Postitoimipaikka
MUURAME

Hinta

Myyntihinta
189 000 €

Muut maksut

Muut kustannukset
Kiinteistövero 460 €/v, lämpöarvio n. 3000-4000 €/v. vakuutus n. 600 €.

Talon ja tontin tiedot

Uudiskohde
Ei
Rakennuksen tyyppi
Tuotantotila
Tontin koko
2 528 m²
Kaavatilanne
asemakaava
Lämmitys
Muu
Lämmönjakelu
Muu
Kunnan numero
500
Tontin omistus
Oma