3 058 m²

Yrittäjäntie 5, Yritysperä, Raahe7 hallitilaa, asunto, toimisto, sosiaalitilat

Pinta-ala
3 058 m²
Kerros
2 / 2
Rakennusvuosi
1974
Toimitilan tyyppi
Tuotantotila
Kaupunginosa
Yritysperä
Kaupunki
Raahe

Myydään teollisuuskiinteistö Raahen Yritysperältä, osoitteessa Yrittäjäntie 5.

Kiinteistötunnus: 678-23-2304-20. Oma tontti, jonka pinta-ala 1,3563ha

Asemakaava, kaavamääräys T-1 (Teollisuus- ja varastorakennnusten korttelialue). Rakennusoikeuden tehokkuusluku 0,6

Vesi- ja viemäriliittymät, sähköliittymä (3x200A), kaukolämpöliittymä.

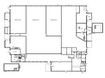
Teollisuusrakennus: - Valmistunut vuonna 1974 - Kerrosala noin 3058m2 - Tilavuus noin 16790m3 - Liimapuupalkkirunko/pelti-mineritverhous - Tasakatto/huopakate - Keskuslämmitys (kaukolämpö). Lämmönkajo halleissa puhalluksella ja muissa tiloissa patterit. - Rakennuksessa yhteensä 7 hallitilaa, toimitila (entinen kuntosali), yksi asunto, kolme varastotilaa, toimistotila, lämpökeskus, lisäksi yläkerrassa toimistotilaa.

Tilaerittely: -Halli nro 1, noin 450m², korkeus noin 4,5m; hallitila, toimisto, sosiaalitilat ja parvi. Neljä nosto-ovea. Tilassa toiminut katsastusalan yritys, jonka tarpeisiin tilat on muokattu. - Halli nro 2, noin 164m², korkeus (korkeimmillaan) noin 4,5m. Nosto-ovi. - Halli nro 6, noin 240m², korkeus noin 4,5m. Nosto-ovi, jossa käynti samassa. - Halli nro 7, noin 778m², korkeus noin 4,5m. Nosto-ovi. - Halli nro 8 noin 250m², korkeus noin 4,5m. - Halli nro 9, noin 150m², korkeus noin 2,4m. - Halli nro 11/12, noin 104m², korkeus noin 2,4m. - Asuinhuoneisto (As 10) noin 53m²; olohuone, makuuhuone, keittiö, Kylpyhuone ja sauna - Toimitila (entinen kuntosali), jonka pinta-ala noin 200m². - Toimistotila, jonka pinta-ala noin 130m²

Em. tiloista vuokrattuna asuinhuoneisto, hallit 2, 6, 8, 9 ja 11/12 sekä kaksi varastotilaa. Rakennuksessa olevat tilat siistikuntoisia. Hallitilassa 11/12 kattovuoto. Lisäksi tontista on vuokrattu alue työmaakoneiden säilytykseen.

Loistavat edellytykset teollisuus-, varasto- tai toimitilakäyttöön!

TEE TARJOUS!

Tervetuloa tutustumaan!

Perustiedot

Sijainti
Yrittäjäntie 5, 92120 Raahe
Kaupunginosa
Yritysperä
Kohdenumero
20999164
Kerros
2 / 2
Toimitilan tyyppi
Tuotantotila
Tilan pinta-ala
3 058 m²
Tontin pinta-ala
1,36 ha
Kokonaispinta-ala
3 058 m²
Pinta-alojen lisätiedot
Rakennuksen kerrosala on noin 3058m2.
Huoneiston kokoonpano
7 hallitilaa, asunto, toimisto, sosiaalitilat
Kunto
Tyydyttävä
Lisätietoa vapautumisesta
sopimuksen mukaan
Asumistyyppi
Omistus
Vuokrattu
Kyllä
Lisätiedot
Sähköliittymä.
Kohde on
Kiinteistö
Kiinteistötunnus
678-23-2304-20

Hinta

Myyntihinta

Muut maksut

Muut kustannukset
Muut maksut: Varainsiirtovero 3%. Sähkön kulutus noin 1000€/kk. Kaukolämmön kustannus noin 2000€/kk.
Kiinteistövero
6985,79 €/v

Talon ja tontin tiedot

Uudiskohde
Ei
Rakennuksen tyyppi
Tuotantotila
Rakennusvuosi
1974
Kerroksia
2
Rakennusmateriaali
Liimapuupalkkirunko. Ulkoverhous pelti/minerit. puu, teräs
Kattomateriaali
Huopakate
Kattotyyppi
Tasakatto
Energiatodistus
Ei lain edellyttämää energiatodistusta
Tontin koko
1,36 ha
Kaavatilanne
Asemakaava
Lämmitys
Kaukolämpö
Lämmönjakelu
Vesikiertoinen patterilämmitys
Tontin omistus
Oma

Tekniset tiedot

Viemäröinti
kunnan