252 000 €180 m²

Työpaikkatie 14, Söderkulla, Sipoo

Velaton hinta
252 000 €
Hoitovastike
306 € / kk
Pinta-ala
180 m²
Rakennusvuosi
2024
Toimitilan tyyppi
Varastotila
Kaupunginosa
Söderkulla
Kaupunki
Sipoo

Uutta varastotilaa Sipoon Söderkullasta

Rakennus A myyty! Ennakkomarkkinoinnissa nyt 2025 rakentuva 720 m2 halli, joka jaettavissa 1-6 käyttäjälle. Pystyt vielä vaikuttamaan hallitilasi järjestelyihin!

Keskeisellä sijainnilla Porvoon moottoritien varrella, Sipoon Söderkullassa, myytävänä erinomaista uutta tilaa yrityksenne tarpeisiin.

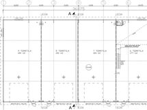
Tila 1: 87,5 m2 (63,5 +24) MYYTY! Tila 2: 81 m2 (63+18) MYYTY! Tila 3: 81 m2 (63+18) MYYTY! TIla 4: 80 m2 (61+18) MYYTY! Tila 6: 227 m2 (177+50) VALMISTUU 2025, VAPAA Tila 7: 180 m2 VALMISTUU 2025, VAPAA Tila 8: 180 m2 VALMISTUU 2025, VAPAA Tila 9: 180 m2 VALMISTUU 2025, VAPAA

- Oma tontti isolla asfaltoidulla pihalla (asfaltti kuuluu hintaan) - Kaukolämpö, aina lämmin tila ja vesi (et lämmitä naapurin tilaa) - Vapaa sisäkorkeus n. 5,5 metriä! - Julkisivulla varattu tilaa yrityksesi kyltille - A Energialuokka - WC varaus (rakennetaan tarvittaessa) - Energiatehokas LED valaistus - 3 voimavirtapistorasiaa - Nosto-ovet (leveys 4,5 m ja korkeus 4,5 m) KAUKO-OHJAUS - Omat erilliset käyntiovet, Abloy Easy lukitus - Kovabetonilattia Mastertop 450 - Öljynerotuskaivo sisällä ja pihalla

Vastike on arvio tilanteesta, kun molemmat hallit ovat valmistuneet. Huomioitavaa, että vastike sisältää lämmityksen n. 15-17 asteeseen.

Tila myydään lähtökohtaisesti arvonlisäverovelvolliseen yrityskäyttöön. Mikäli tila halutaan ostaa yksityishenkilön käyttöön, hintaan lisätään palautettavan arvonlisäveron määrä.

Perustiedot

Sijainti
Työpaikkatie 14, 01150 Sipoo
Kaupunginosa
Söderkulla
Kohdenumero
21082288
Kerroksien lukumäärä
2
Toimitilan tyyppi
Varastotila
Tilan pinta-ala
180 m²
Tontin pinta-ala
3 281 m²
Pinta-alojen lisätiedot
90-720 M2
Kunto
Hyvä
Kunnon lisätiedot
UUSI
Vapautuu
Heti vapaa
Lisätietoa vapautumisesta
Rakennetaan vuoden 2025 aikana, ole yhteydessä mikäli haluat vielä rakentamisen aikaisia muutoksia tilaan.
Keittiö
Ei keittiötä
Kohde on
Osakehuoneisto
Osakeluettelo on siirretty huoneistojärjestelmään
Kyllä
Sähköinen omistajamerkintä
Kyllä
Kiinteistötunnus
753-419-0004-1896

Hinta

Velaton hinta
252 000 €
Myyntihinta
252 000 €
Neliöhinta
1 400 € / m²

Vastikkeet

Hoitovastike
306 € / kk
Pääomavastike
/ kk
Korjausvastike
/ kk
Yhtiövastike yhteensä
306 € / kk

Muut maksut

Lämmityskustannukset
Sisältyy vastikkeeseen
Vesimaksun lisätiedot
Huoneistokohtaiset mittarit, kulutuksen mukaan
Sähkömaksu
Huoneistokohtaiset mittarit, kulutuksen mukaan

Talon ja tontin tiedot

Valmistumisaika
1.4.2024
Uudiskohde
Kyllä
Taloyhtiön nimi
Etelän Hallit Oy
Lisätietoa taloyhtiöstä
Keskinäinen kiinteistöosakeyhtiö
Rakennuksen tyyppi
Varastotila
Rakennusvuosi
2024
Muut tilat
Tekninen tila
Rakennuksen käyttöönottovuosi
2024
Kerroksia
2
Rakennusmateriaali
Puu
Perustus
Maanvarainen
Kattomateriaali
Pelti
Kattotyyppi
Pulpettikatto
Energialuokka
A2018
Kunnallistekniikka
Kunnan vesi-, viemäri- ja hulevesiliittymät
Ilmanvaihto
Painovoimainen
Tontin koko
3 281 m²
Kaavatilanne
Asemakaava
Liikenneyhteydet
Bussipysäkki vieressä
Rakennusoikeus
1641
Lisätietoa rakennusoikeudesta
Rakennusoikeudesta käytetty 1158 m2 tähän mennessä
Lämmitys
Kaukolämpö
Lisätietoja lämmityksestä
Kaukolämpö
Rungon rakennustapa
Paikalla tehty
Tontin omistus
Oma

Tilat ja materiaalit

Muut tilat
Kiinteistölle tullaan rakentamaan toinenkin halli