213 m²

Karaportti 5 4.krs, Karamalmi, Espoo

Pinta-ala
213 m²
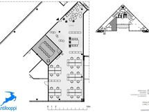
Kerros
4
Toimitilan tyyppi
Toimistotila
Kaupunginosa
Karamalmi
Kaupunki
Espoo

Vuokrattavan 4. kerroksen muuttovalmis 213 m² toimitila Espoon Karamalmilla.

Kiinteistöllä on BREEAM Very Good -sertifikaatti ja se käyttää kotimaista tuulisähköä. Kiinteistössä on mm. auditorio, neuvottelutiloja, parkkihalli ja saunatilat.

Kiinteistö sijaitsee Turun moottoritien ja Kehä II:n läheisyydessä.

Perustiedot

Kaupunginosa
Karamalmi
Kohdenumero
20394861
Kerros
4
Toimitilan tyyppi
Toimistotila
Tilan pinta-ala
213 m²
Kokonaispinta-ala
213 m²
Pinta-alojen lisätiedot
Lisätietoa vapautumisesta
heti
Vuokralaistyyppi
Päävuokralainen
Muut ehdot

Hinta

Vuokra/kk
Lisätietoa vakuudesta
3kk arvonlisäverollista vuokraa vastaava vakuus
Vuokra-aika
Toistaiseksi voimassa oleva. sopimuksen mukaan

Talon ja tontin tiedot

Uudiskohde
Ei
Taloyhtiön nimi
Karaportti 5
Rakennuksen tyyppi
Toimistotila
Energiatodistus
Ei lain edellyttämää energiatodistusta