238 m² - 902 m²

Miestentie 7, Otaniemi, Espoo

Pinta-ala
238 m² - 902 m²
Kerros
3
Toimitilan tyyppi
Toimistotila
Kaupunginosa
Otaniemi
Kaupunki
Espoo

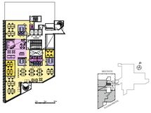
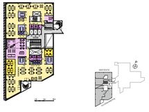
"Tästä monitilatyöympäristöstä avautuu ikkunat kolmeen suuntaan. Koko kerros on n. 902 m2 ja tilan ikkunat neljään suuntaan. Muuttovalmista tasokasta toimitilaa WELL-sertifioidussa Swing Housen B-talossa. B-talo valmistunut v. 2021. Kerros on myös mahdollista jakaa kahteen eri tilakokonaisuuteen.

Ensiluokkaista ja modernia toimitilaa uudiskohteessa Keilaniemessä. Swing House koostuu kahden toimistorakennuksen ja hotellin kokonaisuudesta. Uusi seitsenkerroksinen toimistotalo tarjoaa asiakkailleen korkealaatuiset palvelut ja työhyvinvointia tukevan työympäristön. Mahdollista vuokrata esimerkiksi kokonainen kerros omaan käyttöön, mutta kerrokset ovat myös jaettavissa neljälle käyttäjälle. Tilojen muunneltavuus on erinomainen.

Kiinteistössä on aulapalvelu, viihtyisä lounge, vastuullinen lounasravintola, kuntosali sekä liikunta- ja hyvinvointitilat. Työympäristön viihtyvyyttä lisäävät mm. vuorokausirytmiä noudatteleva valaistus, eri kerroksiin suunnitellut äänimaisemat sekä ilmaa puhdistava seitsemänkerroksinen viherseinä. Ohessa havainnollistavia kuvia kiinteistöstä.

Swing House sijaitsee erinomaisten kulkuyhteyksien varrella. Keilaniemen metroaseman sisäänkäynnille ja Raide-Jokerin pysäkille kävelymatka on 200 metriä. Autoileville on pysäköintipaikkoja sekä talon parkkihallissa että pihassa, ja työmatkapyöräilijöille oma pyöräparkki ja sinne johtava ajoramppi.

Lisätietoja numerosta 020 7290 710 ja lisää kohteita www.premises.fi .

Energialuokka B.

Perustiedot

Sijainti
Miestentie 7, 02150 Espoo
Kaupunginosa
Otaniemi
Kerros
3
Toimitilan tyyppi
Toimistotila
Joustava pinta-ala
238 m² - 902 m²
Kunto
Uusi
Tiedustelut
Ota yhteyttä 020 7290 710 tai asiakaspalvelu@premises.fi
Postitoimipaikka
Espoo

Hinta

Vuokra/kk

Talon ja tontin tiedot

Uudiskohde
Kyllä
Rakennuksen tyyppi
Toimistotila
Liikenneyhteydet
Erinomaiset liikenneyhteydet Keilaniemessä.