411,5 m²

Koskelontie 21-25, Koskelo, Espoo

Pinta-ala
411,5 m²
Kerros
2
Toimitilan tyyppi
Liiketila
Kaupunginosa
Koskelo
Kaupunki
Espoo

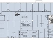
Vuokrattavana pääosin jaettua avotoimistotilaa, jossa on kolme neuvotteluhuonetta, keittiö/taukotila ja sosiaalitilat.

Koskelo Trade Park on noin 26 000 m2 toimitilakokonaisuus, jonka tilat on suunniteltu joustamaan asiakkaan tarpeiden mukaan. Kaava mahdollistaa erilaisten toimintojen sijoittumisen ja yhdistämisen tontilla. Kokonaisuus käsittää varasto-, toimisto-, myymälä-ja näyttelytilaa. Toimitiloja pihatasossa nosto-ovin tai lastauslaituritasolla. Varastoissa korkeus on noin 8 metriä.

Lisätiedot 020 7290 710 ja lisää kohteita premises.fi

Kohteella ei ole lain edellyttämää energiatodistusta tai energialuokka ei ole tiedossa.

Kiinteistön kuvaus: Koskelo Trade Parkon noin 26 000 m² toimitilakokonaisuus, jonka tilat on suunniteltu joustamaan asiakkaan tarpeiden mukaan. Kaava mahdollistaa erilaisten toimintojen sijoittumisen ja yhdistämisen tontilla. Kokonaisuus käsittää varasto-, toimisto-, myymälä-ja näyttelytilaa. Toimitiloja pihatasossa nosto-ovin tai lastauslaituritasolla. Varaston korkeus on noin 8 metriä.

Perustiedot

Sijainti
Koskelontie 21-25, 02920 Espoo
Kaupunginosa
Koskelo
Kerros
2
Toimitilan tyyppi
Liiketila
Tilan pinta-ala
411,5 m²
Kokonaispinta-ala
411,5 m²
Tiedustelut
Ota yhteyttä 020 7290 710 tai asiakaspalvelu@premises.fi
Postitoimipaikka
Espoo

Hinta

Vuokra/kk

Talon ja tontin tiedot

Uudiskohde
Ei
Rakennuksen tyyppi
Liiketila
Liikenneyhteydet
Sijainti Espoossa Kehä III:n varrella, Turun moottoritien ja Tampereen moottoritien välissä. Erinomaiset liittymät Itä-ja länsipuolella Koskeloa.