934 m²

Tarvonsalmenkatu 17, Perkkaa, Espoo

Pinta-ala
934 m²
Kerros
5
Rakennusvuosi
2013
Toimitilan tyyppi
Toimistotila
Kaupunginosa
Perkkaa
Kaupunki
Espoo

Derby Business Park tarjoaa yrityksille muuntojoustavaa, tehokasta ja modernia toimitilaa sekä monipuoliset palvelut.

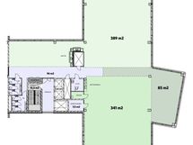
Tämä 934 m² toimistotila kattaa Voltti-talon 5. kerroksen. Toimistossa on avotilaa, useita huoneita, oma keittiö, oleskelutila sekä wc:t. Kerros voidaan tarvittaessa jakaa kahdelle käyttäjälle n. 389 m² ja 341 m² kokoisiin osiin, jolloin hissiaula ja wc:t jäävät yhteiskäyttöisiksi. 85 m² hieno maisemahuone voidaan yhdistää kumpaan vain osaan.

Kiinteistössä on aulapalvelu, tasokas lounasravintola, kuntosali ja vuokrattavia neuvottelutiloja. Talon ympäristöystävällisyyteen on kiinnitetty erityistä huomiota. Kiinteistöllä on LEED Platinum -sertifikaatti. Derby Business Parkissa on erillinen pysäköintitalo, jossa on myös sähkölatauspisteitä, jonka lisäksi kiinteistön pihalla on asiakaspaikkoja.

Kysy lisää numerosta 044 723 4700 tai info@bref.fi. Palvelumme on tilanhakijoille ilmainen.

Perustiedot

Kaupunginosa
Perkkaa
Kerros
5
Toimitilan tyyppi
Toimistotila
Tilan pinta-ala
934 m²
Kokonaispinta-ala
934 m²
Kunto
Hyvä
Parveke
Ei
Asunnossa sauna
Ei
Palvelut
Kiinteistössä aula-, vartiointi- sekä tasokkaat ravintolapalvelut. Runsaasti kokoustiloja, kuntosali sekä sauna- ja edustustilat. Leppävaaran monipuoliset palvelut lähellä.
Lisätiedot
Konferenssihuone

Hinta

Vuokra/kk

Talon ja tontin tiedot

Rakennuksen tyyppi
Toimistotila
Rakennusvuosi
2013
Hissi
Kyllä
Taloyhtiössä on sauna
Ei
Energiatodistus
Ei lain edellyttämää energiatodistusta
Liikenneyhteydet
Erinomainen sijainti Turunväylän ja Kehä I:n kupeessa.