1 000 m²

Ruosilantie 18, Konala, Helsinki

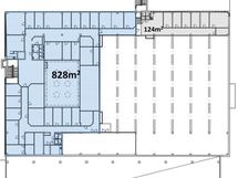
Pinta-ala
1 000 m²
Kerros
3
Toimitilan tyyppi
Toimistotila
Kaupunginosa
Konala
Kaupunki
Helsinki

Ruosilantie 18, 1000 m2

Vuokrataan toimistotilaa kiinteistön 3. kerroksesta. Valoisista toimistotiloista näkymät ulos sekä atriumiin.

Kiinteistössä on oma lounasravintola sekä lähistöllä on useita lounasravintoloita. Kauppakeskus Ristikon kattavat palvelut ovat myös lyhyen kävelymatkan päässä.
Kohde sijaitsee Vihdintien varrella läheisyydessä ja kehä I:n helposti saavutettavissa. Konalaan hyvät bussiyhteydet ja Malminkartanon juna-asema sijaitsee 1,3 km päässä.
Lisätietoja soita 020 730 4530 tai info@repoint.fi. Palvelumme on tilanhakijalle ilmainen.

Perustiedot

Sijainti
Ruosilantie 18, 00390 Helsinki
Kaupunginosa
Konala
Kerros
3
Toimitilan tyyppi
Toimistotila
Tilan pinta-ala
1 000 m²
Kokonaispinta-ala
1 000 m²
Kunto
Hyvä
Vuokralaistyyppi
Päävuokralainen
Tiedustelut
Lisätietoja soita 020 730 4530 tai info@repoint.fi

Hinta

Vuokra/kk

Talon ja tontin tiedot

Rakennuksen tyyppi
Toimistotila