488 m²

Aleksanterinkatu 9 A, Keskusta, Helsinki

Pinta-ala
488 m²
Kerros
4
Toimitilan tyyppi
Toimistotila
Kaupunginosa
Keskusta
Kaupunki
Helsinki

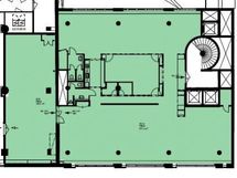
Kauppakeskus Kluuvin Aleksanterinkadun puolella sijaitseva toimistokokonaisuus, valoisat, edustavat täysin remontoidut toimistotilat. Tilan keskellä suuri valoisa neuvottelutila, toteutus lasiseinillä. Tilaan on liitettävissä viereinen edustava, kesällä vapautuva 642m2 toimistokokonaisuus.

Perustiedot

Kaupunginosa
Keskusta
Kerros
4
Toimitilan tyyppi
Toimistotila
Tilan pinta-ala
488 m²
Ajo-ohjeet
Aja keskustaan, ja Kluuvin Parkkihalliin, josta kuivin jaloin hissillä Kluuvin keskukseen.
Palvelut
Kauppakeskus Kluuvi ja kaikki muut keskustan palvelut
Lisätiedot
Topreal +358962277852, info@topreal.fi

Hinta

Vuokra/kk

Talon ja tontin tiedot

Uudiskohde
Ei
Rakennuksen tyyppi
Toimistotila
Hissi
Kyllä
Liikenneyhteydet
Kaikki liikennevälineet aivan vieressä, raitiovaunu pysähtyy kiinteistö eteen, bussit ja juna kävelyetäisyydellä, ja metro vieressä

Tilat ja materiaalit

Pysäköintitilan kuvaus
Parkkihalli kiinteistön alapuolella, josta hissillä suoraan Kluuvin keskukseen.