299 m²

Kluuvikatu 5, Kluuvi, Helsinki

Pinta-ala
299 m²
Huoneita
1
Toimitilan tyyppi
Toimistotila
Kaupunginosa
Kluuvi
Kaupunki
Helsinki

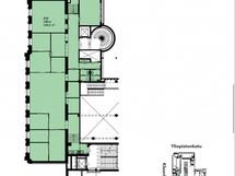
Vuokrataan 1800 -luvun lopun historiallisen rakennuksen 3. kerroksen 299,5m2 toimistotila, joka tarjoaa edustavan ja toimivan tilakokonaisuuden. Julkisivun kauneus korostuu juuri asennetuin kohdevalaisin. Toimiston sisäänkäynti kadulta osoitteesta Kluuvikatu 5. Tila on optimaali noin 15-25 henkilön organisaatiolle. Tilassa on edustava sisääntuloaula ja iso neuvottelutila, pienehköjä huoneita lasiseinin ja avotilaa sekä taukokeittiö.

KLUUVIssa on useita ravintoloita ja kahviloita sekä erikoisliikkeitä rakennuksen alemmissa kerroksissa. Talossa hissiyhteyden päässä sijaitsevat Kluuvin pysäköintihallit. Käyttäjille on myös tarjolla suihkutilat pukukaappeineen sekä pyörien säilytystilaa. Talossa toimii myös Meeting Park KLUUVI, joka tarjoaa monipuoliset neuvottelumaailman faciliteetit. Erinomaiset julkiset kulkuyhteydet.

Pysäköintihalliin pääsee kuivin jaloin hissiyhteydellä Aimo Park Kluuviin.

Kysy lisää Jouko Raitanen Helsinki puh. 0504695444

Perustiedot

Sijainti
Kluuvikatu 5, 00100 Helsinki
Kaupunginosa
Kluuvi
Kohdenumero
7915
Toimitilan tyyppi
Toimistotila
Tilan pinta-ala
299 m²
Huoneita
1
Kunto
Hyvä
Lisätietoa vapautumisesta
Heti vapaa
Parveke
Ei
Asunnossa sauna
Ei
Vuokralaistyyppi
Päävuokralainen
Kohde on
Osakehuoneisto

Hinta

Vuokra/kk

Talon ja tontin tiedot

Uudiskohde
Ei
Rakennuksen tyyppi
Toimistotila
Hissi
Ei
Taloyhtiössä on sauna
Ei
Energialuokka
Ei lain edellyttämää energiatodistusta
Tontin omistus
Vuokralla