645 m²

Vuorikatu 20, Ydinkeskusta, Helsinki

Pinta-ala
645 m²
Kerros
3
Rakennusvuosi
1939
Toimitilan tyyppi
Toimistotila
Kaupunginosa
Ydinkeskusta
Kaupunki
Helsinki

Toimistotilaa Helsingin Kaisaniemessä.

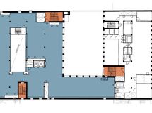
Tämä 645 m² toimistotila sijaitsee kiinteistön 3. kerroksessa. Tila on mahdollista remontoida vuokralaisen tarpeiden mukaan. Tila voidaan myös jakaa kahdelle käyttäjälle noin 341m² ja 304m² kokoisiin osiin.

Vuorikatu 20 on toimistokiinteistö, joka sijaitsee helposti saavutettavissa olevalla paikalla Kaisaniemen ja Kluuvin läheisyydessä. Sen tilat on rakennettu niin, että ne ovat helposti muokattavissa vuokralaisen tarpeiden mukaan. Kiinteistö on saneerattu vuonna 2019. Valoa ja avaruutta tiloihin tuo keskellä B-taloa oleva atrium. Lisäksi kiinteistöllä on kodikas sisäpiha.

Tämän arvokiinteistön on suunnitellut arkkitehti Lars Eklund ja rakennuksessa toimi alunperin Tampereen Rohdos (nyk. Tamro). Kiinteistö peruskorjattiin täysin vuonna 2005, jonka jälkeen tilat ovat pitkälti olleet Poliisihallituksen käytössä. Tiloissa on jäähdytys ja tekniikka on nykyvaatimusten mukaista.

Kysy lisää numerosta 044 723 4700 tai info@bref.fi. Palvelumme on tilanhakijoille ilmainen.

Perustiedot

Sijainti
Vuorikatu 20, 00100 Helsinki
Kaupunginosa
Ydinkeskusta
Kerros
3
Toimitilan tyyppi
Toimistotila
Tilan pinta-ala
645 m²
Kokonaispinta-ala
645 m²
Kunto
Hyvä
Parveke
Ei
Asunnossa sauna
Ei
Palvelut
Kaisaniemen ja keskustan alueen palvelut kaikki lähellä. Kiinteistössä lounasravintola.

Hinta

Vuokra/kk

Talon ja tontin tiedot

Rakennuksen tyyppi
Toimistotila
Rakennusvuosi
1939
Taloyhtiössä on sauna
Ei
Energiatodistus
Ei lain edellyttämää energiatodistusta
Liikenneyhteydet
Erinomaiset julkisen liikenteen yhteydet. Raitiovaunu- ja bussipysäkille sekä metron sisäänkäyntiin matkaa noin 100 metriä. Kiinteistössä pieni pysäköintihalli ja lähes vieressä Kluuvin pysäköintihalli.