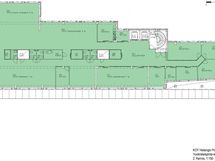
616,5 m²

Pohjoinen Rautatiekatu 25 2.krs, Kamppi, Helsinki

Pinta-ala
616,5 m²
Kerros
2 / 8
Rakennusvuosi
1999
Toimitilan tyyppi
Toimistotila
Kaupunginosa
Kamppi
Kaupunki
Helsinki

Kiinteistö Oy Helsingin Pohjoinen Rautatiekatu 25 on vuosina 2016-2017 tekniikaltaan uudenveroiseksi saneerattu toimistokiinteistö keskeisellä paikalla Helsingin Kampissa. Metro, Kampin bussiterminaali ja useampi raitiolinja sijaitsevat kivenheiton päässä, ja pyöräilyväylä Baana kulkee kohteen edestä.

Valoisat ja viihtyisät toimistokerrokset tarjoavat viihtyisät työtilat 200-300 henkilölle, ja kahdesta kellarikerroksesta löytyy tilava pyöräkellari pukuhuoneineen, varastotilaa sekä pysäköintihalli 15 autolle. Ensimmäisen kerroksen neuvottelu- ja kokoustilat ovat kaikkien vuokralaisten yhteiskäytössä.

Perustiedot

Kaupunginosa
Kamppi
Kohdenumero
21582673
Kerros
2 / 8
Toimitilan tyyppi
Toimistotila
Tilan pinta-ala
616,5 m²
Kokonaispinta-ala
616,5 m²
Pinta-alojen lisätiedot
Kunto
Hyvä
Lisätietoa vapautumisesta
heti
Vuokralaistyyppi
Päävuokralainen
Muut ehdot

Hinta

Vuokra/kk
Lisätietoa vakuudesta
3 kk:n arvonlisäverollista vuokraa vastaava vakuus
Vuokra-aika
Toistaiseksi voimassa oleva. sopimuksen mukaan

Talon ja tontin tiedot

Uudiskohde
Ei
Taloyhtiön nimi
Kiinteistö Oy Helsingin Pohjoinen Rautatiekatu 25
Rakennuksen tyyppi
Toimistotila
Rakennusvuosi
1999
Kerroksia
8
Hissi
Kyllä
Energialuokka
D2018
Energiatodistus
Kyllä
Isännöinti
Retta Management,

Tilat ja materiaalit

Pysäköintitilan kuvaus
autohallipaikkoja: 15.