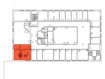
46 m²

Valokaari 10, Suutarila, Helsinki

Pinta-ala
46 m²
Kerros
2
Toimitilan tyyppi
Toimistotila
Kaupunginosa
Suutarila
Kaupunki
Helsinki

Pääkonttorirakennuksessa vuokrattavana toimistotila 46 m2 toisessa kerroksessa. Tila koostuu kolmesta huoneesta. Kiinteistössä valokuituyhteys.

Perinteikäs teollisuusmiljöö Suutarilassa, alle kilometrin päässä Kehä III ja Vuosaaren satamaan alle 10 km.

Lisätiedot ja kohde-esittelyt 020 7290 710, lisää kohteita premises.fi.

Kohteella ei ole lain edellyttämää energiatodistusta tai energialuokka ei tiedossa.

Kiinteistön kuvaus: Kohde on vuonna 1943 valmistunut kolmikerroksinen teollisuuskiinteistö, jonka ohessa sijaitsee vuonna 1951 valmistunut kolmikerroksinen varastorakennus. Kohteessa on teollisuus- ja varastotilojen lisäksi runsaasti toimistotilaa. Tontilla on myös suuri autohalli.

Perustiedot

Sijainti
Valokaari 10, 00750 Helsinki
Kaupunginosa
Suutarila
Kerros
2
Toimitilan tyyppi
Toimistotila
Tilan pinta-ala
46 m²
Kokonaispinta-ala
46 m²
Tiedustelut
Ota yhteyttä 020 7290 710 tai asiakaspalvelu@premises.fi
Postitoimipaikka
Helsinki

Hinta

Vuokra/kk

Talon ja tontin tiedot

Uudiskohde
Ei
Rakennuksen tyyppi
Toimistotila
Rakennusvuoden lisätiedot
1943