645 m²

Vuorikatu 20, Kaisaniemi, Helsinki

Pinta-ala
645 m²
Kerros
2
Toimitilan tyyppi
Toimistotila
Kaupunginosa
Kaisaniemi
Kaupunki
Helsinki

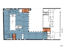
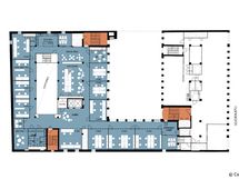
Vuokrattavana heti muuttovalmis moderni toimistotila. Tähän toimitilaan saa työpisteet n. 40-50 henkilölle ja lisäksi runsaasti ryhmätyö- ja neuvottelutiloja. Loistava sijainti lähellä keskustan palveluita. Yliopiston metroasema aivan vieressä.

Perustiedot

Sijainti
Vuorikatu 20, 00100 Helsinki
Kaupunginosa
Kaisaniemi
Kerros
2
Toimitilan tyyppi
Toimistotila
Tilan pinta-ala
645 m²
Lisätietoa vapautumisesta
Heti vapaa
Lisätiedot
Ilmastointi, avotoimisto

Hinta

Vuokra/kk

Talon ja tontin tiedot

Taloyhtiön nimi
Helsingin Vuorikatu 20
Rakennuksen tyyppi
Toimistotila
Energialuokka
D

Tilat ja materiaalit

Pysäköintitilan kuvaus
Kiinteistössä on oma pysäköintihalli, jossa on 16 autopaikkaa. Talon edessä on maksullisia kadunvarsipysäköintipaikkoja ja EuroPark P-Kluuvi -pysäköintilaitoksen lähin sisäänkäynti on alle 2 min kävelymatkan päässä.