770 m²

Hämeentie 105, Hermanni, Helsinki

Pinta-ala
770 m²
Kerros
2 / 5
Rakennusvuosi
1960
Toimitilan tyyppi
Toimistotila
Kaupunginosa
Hermanni
Kaupunki
Helsinki

Vilkkaiden väylien lähellä sijaitsevia, sekä toimisto- että varastokäyttöön sopivia tiloja Helsingin Hermannissa. Vallilan siirtolapuutarhan lähellä sijaitseva toimitilakiinteistö sopii sekä toimisto- että varastokäyttöön. Tilat on mahdollista muunnella erilaisten yritysten tarpeisiin sopiviksi. Tänne on helppo tulla niin julkisilla kulkuneuvoilla kuin omalla autolla. Naapurikiinteistössä on lounasravintola ja kuntokeskus. Kauppakeskus Arabian, Hämeentien kivijalkamyymälöiden ja ravintoloiden palvelut ovat viiden minuutin ajomatkan päässä.

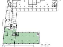
Valoisa toimistotila, joka sopii hyvin myös tuotantotilaksi. Tilaan on kolme sisäänkäyntiä ja siihen on pääsy myös katutasolta. Ympäristösertifikaatit: RESB Global Sector Leader 2025

Perustiedot

Sijainti
Hämeentie 105, 00550 Helsinki
Kaupunginosa
Hermanni
Kerros
2 / 5
Toimitilan tyyppi
Toimistotila
Tilan pinta-ala
770 m²
Palvelut
Apteekki, Huoltoasema, Kahvila, Kauppakeskus, Kioski, Kirjasto, Kulttuuri, Kuntosali, Pankki, Pesula, Posti, Ravintola, Ruokakauppa, Terveyskeskus, Uimahalli Naapurikiinteistössä on lounasravintola ja kuntokeskus. Kauppakeskus Arabian, Hämeentien kivijalkamyymälöiden ja ravintoloiden palvelut ovat viiden minuutin ajomatkan päässä.

Hinta

Vuokra/kk

Talon ja tontin tiedot

Rakennuksen tyyppi
Toimistotila
Rakennusvuosi
1960
Kerroksia
5
Energialuokka
D2018
Liikenneyhteydet
Bussit ja raitiovaunut kulkevat pienen kävelymatkan päässä Hämeentiellä. Lahden moottoritie lähtee aivan kiinteistön vierestä, joten myös Kehä I:lle pääsee sujuvasti.

Tilat ja materiaalit

Pysäköintitilan kuvaus
Autopaikat kiinteistön pihassa ja kadunvaressa Kiinteistön pihassa on vuokrattavia autopaikkoja. Kadunvarsipysäköinti järjestyy esimerkiksi yritystunnuksella.
Muut tilat
Autopaikat