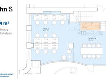
74 m²

John Stenbergin ranta 2, Hakaniemi, Helsinkimonitilatoimisto

Pinta-ala
74 m²
Kerros
1 / 9
Rakennusvuosi
1939
Toimitilan tyyppi
Toimistotila
Kaupunginosa
Hakaniemi
Kaupunki
Helsinki

Vuokrataan toimisto Hakaniemestä 74 m²

Heti vapaa toimisto vuokrattavana Pitkänsillan kupeesta. Hakaniemen palvelut ja erinomaiset julkiset yhteydet vieressä. Kiinteistöstä löytyy aulapalvelu, ravintola ja kuntosali sosiaalitiloineen. Myös vuokrattavia kokoustiloja saatavilla, autoilijoille parkkihalli ja sisäpaikat pyöräilijöille. Tila sijaitsee katutasossa näkyvällä paikalla.

Aarno Toffer aarno.toffer@toimitilapalvelu.fi 044 9781393

Perustiedot

Kaupunginosa
Hakaniemi
Kohdenumero
21689230
Kerros
1 / 9
Toimitilan tyyppi
Toimistotila
Tilan pinta-ala
74 m²
Huoneiston kokoonpano
monitilatoimisto

Hinta

Vuokra/kk
Lisätietoa vakuudesta
3 kk vuokran määrä + alv

Talon ja tontin tiedot

Rakennuksen tyyppi
Toimistotila
Rakennusvuosi
1939
Liikehuoneistojen lukumäärä
15
Liikehuoneistojen pinta-ala
7 790 m²
Kerroksia
9
Lisätietoja lämmityksestä
Vesikeskuslämmitys
Tontin omistus
Oma