224 m²

Mikonkatu 2, Keskusta, Helsinki

Pinta-ala
224 m²
Toimitilan tyyppi
Toimistotila
Kaupunginosa
Keskusta
Kaupunki
Helsinki

Ydinkeskustan ullakkotoimistotila joka rakennetaan uudelle vuokaraiselle!

Perustiedot

Sijainti
Mikonkatu 2, 00100 Helsinki
Kaupunginosa
Keskusta
Toimitilan tyyppi
Toimistotila
Tilan pinta-ala
224 m²
Kokonaispinta-ala
224 m²
Palvelut
Kaikki keskustan lukuiset palevlut on vain kivenheiton päässä.

Hinta

Vuokra/kk

Talon ja tontin tiedot

Rakennuksen kuvaus
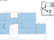
Gaselli-korttelin Eteläpäädyn kulmassa oleva, kuudennen kerroksen toimistotila loistavalla paikalla Helsingin ydinkeskustassa. Tässä K.A. Wreden suunnittelemassa ja vuonna 1888 valmistuneessa arvokiinteistössä tehdyt perusparannustyöt on toteutettu kiinteistön arkkitehtuuria ja arvokasta historiaa kunnioittaen. Tämä toimistotila on purettu betonille ja näin ollen se rakennetaan täysin uudelle vuokralaiselle. Vuokralainen saa vaikuttaa tilaratkaisuun, materiaaleihin ja varustukseen. Tila koostuu kahdesta huoneesta. Tilassa o paljon ikkunapinta-alaa joten se on täynnä valoa! Tila voidaan toteuttaa vaativankin vuokralaisen tarpeisiin. Toimisto sijaitsee kiinteistön ylimmässä kerroksessa ja on kerroksen ainoa tila. Tilaan on hissi, että rappuyhteys. Sisäänkäynti joko Pohjoisesplanadi 35 tai Mikonkatu 2 posttikongista. Toimiston ikkunoista upeat näköalat Helsingin keskustan kattojen yli sekä Mummotunneliin. Tilassa on koneellinen ilmanvaihto ja jäähdytys.
Rakennuksen tyyppi
Toimistotila
Energialuokka
Ei lain edellyttämää energiatodistusta
Liikenneyhteydet
Kaikki julkisen liikenteen yhteydet ovat vain lyhyen kävelymatkan päässä.

Tilat ja materiaalit

Pysäköintitilan kuvaus
Lähin autoilijoita palveleva pysäköintihalli sijaitsee Kluuvissa, sisäänajo Kaisaniemestä tai Fabianinkadulta.