162 m²

Kuortaneenkatu 5, Vallila, Vallila, Helsinki

Pinta-ala
162 m²
Toimitilan tyyppi
Toimistotila
Kaupunginosa
Vallila
Kaupunki
Helsinki

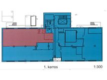
Vuokrataan Tekosilkkikutomon kiinteistöstä katutason toimisto. Tila sopii mainiosti mm. showroomiksi, oma keittiö ja neuvottelutila sekä pieni varasto. Kiinteistö on saneerattu vuosina 2012–2013.

Perustiedot

Kaupunginosa
Vallila
Toimitilan tyyppi
Toimistotila
Tilan pinta-ala
162 m²
Kokonaispinta-ala
162 m²
Palvelut
Kohteen lähietäisyydellä on lukuisia lounasravintoloita ja lähikaupat löytyvät Pasilan aseman vierestä.

Hinta

Vuokra/kk

Talon ja tontin tiedot

Rakennuksen kuvaus
Vuokrataan Tekosilkkikutomon kiinteistöstä katutason toimisto. Tila sopii mainiosti mm. showroomiksi, oma keittiö ja neuvottelutila sekä pieni varasto. Kiinteistö on saneerattu vuosina 2012–2013.
Rakennuksen tyyppi
Toimistotila
Energialuokka
D
Liikenneyhteydet
Raitiovaunupysäkki 340 m Bussipysäkki 190 m Juna-asema 970 m Lentoasema 15,2 km

Tilat ja materiaalit

Pysäköintitilan kuvaus
Pysäköintitilaa on aivan kiinteistön edessä koko kadun mitalla. Lähellä on myös parkkitalo.