165 m²

Simonkatu 6, Kamppi, Helsinki

Pinta-ala
165 m²
Toimitilan tyyppi
Liiketila
Kaupunginosa
Kamppi
Kaupunki
Helsinki

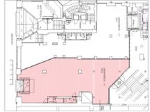
SIMONKATU 6 - liiketila 165m2

Vuokrattavissa erittäin näkyvältä paikalta Forum-korttelista katutason liiketila. Tähän läpivirtaavaan liiketilaan kulku kauppakeskus Forumin puolelta tai suoraan Simonkadulta. Tilan hulppea korkeus mahdollistaa erikoisimmatkin sisustusratkaisut.

Lisätiedot ja kohdenäytöt: p. 040 7070 321 / Heikki

Kiinteistön kuvaus: MAALAISTEN TALO sijaitsee näkyvällä paikalla Simonkadulla ja on yhteydessä kauppakeskus Forumiin, joten kaikki tarvittavat palvelut ovat käden ulottuvilla. Kampin keskus vastapäätä ja Päärautatieasemalle muutama metri.

Lisää kohteita: www.premises.fi / p. 020 7290 710 (palvelumme asiakkaille on maksuton) Kohteella ei ole lain edellyttämää energiatodistusta.

Perustiedot

Sijainti
Simonkatu 6, 00100 Helsinki
Kaupunginosa
Kamppi
Toimitilan tyyppi
Liiketila
Tilan pinta-ala
165 m²
Kokonaispinta-ala
165 m²
Lisätiedot
Ilmastointi: Kyllä IT-verkko: Kyllä
Tiedustelut
Ota yhteyttä 020 7290 710 tai asiakaspalvelu@premises.fi
Postitoimipaikka
Helsinki

Hinta

Vuokra/kk

Talon ja tontin tiedot

Uudiskohde
Ei
Rakennuksen tyyppi
Liiketila
Rakennusvuoden lisätiedot
1921
Liikenneyhteydet
Kaikki julkisen liikenteen vaihtoehdot vieressä!