114,5 m²

Bulevardi 32, Punavuori, Helsinki

Pinta-ala
114,5 m²
Kerros
1
Toimitilan tyyppi
Liiketila
Kaupunginosa
Punavuori
Kaupunki
Helsinki

Liiketilaa asuintalon kivijalassa Bulevardilla.

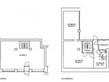
Tämä 114,5 m² liiketila sijaitsee asuintalon kivijalassa sekä osittain kellarissa. Katutasossa tilaa on n. 50 m² ja kellarissa n. 64,5 m², jossa varastoa/työtilaa sekä sosiaalitilat. Tilan sisäänkäynti sijaitsee Albertinkadun puolella.

Tämä tila ei sovellu ravintola-, kahvila- tai parturi-kampaamotoimintaan, This premise is not suitable for a restaurant, cafeteria or a barber shop.

Bulevardi 32 on asuinkiinteistö Helsingin keskustan läheisyydessä, jonka kivijalasta löytyy liiketiloja. Kiinteistö on helposti saavutettavissa julkisella liikenteellä ja se on kävelyetäisyydellä keskustan alueen palveluista.

Kysy lisää numerosta 044 723 4700 tai info@bref.fi. Palvelumme on tilanhakijoille ilmainen.

Perustiedot

Sijainti
Bulevardi 32, 00120 Helsinki
Kaupunginosa
Punavuori
Kerros
1
Toimitilan tyyppi
Liiketila
Tilan pinta-ala
114,5 m²
Kokonaispinta-ala
114,5 m²
Kunto
Hyvä
Parveke
Ei
Asunnossa sauna
Ei
Palvelut
Bulevardin, Punavuoren, Kampin ja Hietalahden alueen palvelut lähistöllä.

Hinta

Vuokra/kk

Talon ja tontin tiedot

Rakennuksen tyyppi
Liiketila
Hissi
Kyllä
Taloyhtiössä on sauna
Ei
Energialuokka
E
Energiatodistus
Kyllä
Liikenneyhteydet
Hyvät julkisen liikenteen yhteydet. Keskusta-alueen pysäköintihallit lähettyvillä.