102 m²

Laippatie 4, Roihupelto, Helsinki

Pinta-ala
102 m²
Kerros
5 / 5
Toimitilan tyyppi
Toimistotila
Kaupunginosa
Roihupelto
Kaupunki
Helsinki

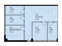
Siisti 102 m² toimisto Roihupellossa.

Vuokrattava n. 5-8 henkilölle soveltuva toimitila Laippatie 4:n toimistohotellista. Tila on kalustettu.

Internet-yhteys ja yhteiskäyttöiset sosiaalitilat sisältyvät vuokraan.

Toimistohotellin asukkaiden käytössä on kaksi erikseen varattavaa, maksutonta neuvotteluhuonetta.

Talon pihalta on vuokrattavissa pysäköintipaikkoja. Myös vieraspaikat talon pihalla. Lisäksi Laippatien varrella on maksuttomia kadunvarsipaikkoja.

Joustava ja kohtuuhintainen valinta tiimillesi.

Perustiedot

Sijainti
Laippatie 4, 00880 Helsinki
Kaupunginosa
Roihupelto
Kerros
5 / 5
Toimitilan tyyppi
Toimistotila
Tilan pinta-ala
102 m²
Kokonaispinta-ala
102 m²

Hinta

Vuokra/kk

Talon ja tontin tiedot

Rakennuksen tyyppi
Toimistotila
Kerroksia
5
Hissi
Kyllä
Energialuokka
Ei lain edellyttämää energiatodistusta