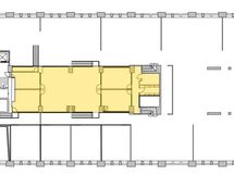
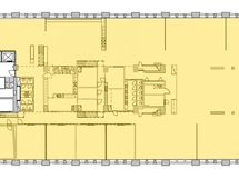
1 408 m²

Kaikukatu 4, Sörnäinen, Helsinki

Pinta-ala
1 408 m²
Kerros
4 / 7
Toimitilan tyyppi
Toimistotila
Kaupunginosa
Sörnäinen
Kaupunki
Helsinki

Upea industrial-henkinen 1408 m² toimisto parviratkaisulla!

Tässä upeassa toimitilassa on poikkeuksellisen korkea huonekorkeus, joka tuo tilaan avaruutta. Lisäksi tilaa hallitsee suuret valoisat ikkunat sekä Leipätehtaalle ominainen loft-tyyli.

Leipätehdas sijaitsee Elannon korttelin sisäpihalla Helsingin Sörnäisissä lähellä monipuolisia liikenneyhteyksiä.

Alueelle on muuttanut lukuisia uusia luovan alan toimijoita laajan palvelutarjonnan sekä monipuolisten liikenneyhteyksien vuoksi. Leipätehtaalla toimii ihana Cafe Bruket, joka tarjoaa mahtavia lounas- tai kahvihetkiä.

Kiinteistöstä löytyy tuntivarattavia neuvottelutiloja väliaikaiseen käyttöön.

Leipätehtaan alakerrassa on avattu ihana Café Bruket missä voi nauttia maukkaasta lounaasta tai vaikka piipahtaa kahville.

Perustiedot

Sijainti
Kaikukatu 4, 00530 Helsinki
Kaupunginosa
Sörnäinen
Kerros
4 / 7
Toimitilan tyyppi
Toimistotila
Tilan pinta-ala
1 408 m²
Kokonaispinta-ala
1 408 m²

Hinta

Vuokra/kk

Talon ja tontin tiedot

Rakennuksen tyyppi
Toimistotila
Kerroksia
7
Hissi
Kyllä
Energialuokka
Ei lain edellyttämää energiatodistusta