128 m² - 398 m²

Valokaari 10, Suutarila, Helsinki

Pinta-ala
128 m² - 398 m²
Kerros
1 / 3
Rakennusvuosi
1950
Toimitilan tyyppi
Toimistotila
Kaupunginosa
Suutarila
Kaupunki
Helsinki

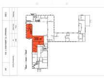
Näyttely-, toimisto- ja varastotila 398 m² (jaettavissa 270 m²+128 m²) Helsingin Suutarilassa. Katutaso, nosto-ovi. Julkisivu näkyy kadulle.

Pääkonttorirakennuksen katutasosta vuokrataan noin 398 m²:n kokoinen monipuolinen toimitila, jossa on toimisto- ja näyttelytilaa sekä erillinen varastopuoli.

Toimistotilassa on erillisiä huoneita sekä avointa tilaa, hyvä keittiö ja kunnon wc-tilat. Osassa huoneista on säilynyt upeita vanhoja ovia ja sormipaneeleja.

Varastotilaan on kulkuyhteys myös nosto-oven kautta pihalta. Nosto-oven leveys on 3 m ja korkeus 2,5 m. Toimitila sijoittuu rakennuksen kadun puoleiseen osaan, jonka julkisivu näkyy hienosti kadulle. Vieressä ovat pihan hyvät vinoparkkipaikat.

Tila on jaettavissa kahteen osaan 270 m² ja 128 m², jotka voidaan vuokrata erikseen.

Kiinteistössä valokuituyhteys.

Sijainti on tunnettu ja hyvä. Pääkaupunkiseudun selkärangalle, Kehä 3:lle, on alle kilometri, Helsinki-Vantaan lentoasemalle alle 10 kilometriä ja Vuosaaren satamaan vain hieman reilu 10 km.

Ilmoittaja on kiinteistön omistaja.

Tutustu myös muihin kohteen vapaisiin tiloihin! https://www.toimitilanne.fi/helsinki-suutarila-valokaari/

Yhteydenotot: Tatu Hyvärinen p. 040 145 7845 tatu.hyvarinen@toimitilanne.fi

Perustiedot

Sijainti
Valokaari 10, 00750 Helsinki
Kaupunginosa
Suutarila
Kohdenumero
23404260
Kerros
1 / 3
Toimitilan tyyppi
Toimistotila
Joustava pinta-ala
128 m² - 398 m²
Lisätietoa vapautumisesta
Heti vapaa

Hinta

Vuokra/kk
Lisätietoa vakuudesta
Ota yhteyttä.

Talon ja tontin tiedot

Uudiskohde
Ei
Rakennuksen tyyppi
Toimistotila
Rakennusvuosi
1950
Liikehuoneistojen lukumäärä
15
Liikehuoneistojen pinta-ala
614 m²
Kerroksia
3
Rakennusmateriaali
Tiili
Tontin omistus
Oma