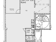
78,5 m²

Esterinportti 2, Pasila, Helsinki

Pinta-ala
78,5 m²
Kerros
1
Toimitilan tyyppi
Toimistotila
Kaupunginosa
Pasila
Kaupunki
Helsinki

Toimisto-/liiketilaa hyvällä paikalla Helsingin Pasilassa.

Tämä 78,5 m² toimitila sijaitsee kiinteistön katutasossa. Tila soveltuu sekä toimistoksi että liiketilaksi. Tilasta löytyy neuvotteluhuone, wc, suihkutilat ja keittiö. Tila sijaitsee Pasilanraition puolella.

Esterinportti 2 on toimistokiinteistö, joka sijaitsee Länsi-Pasilassa vain kivenheiton päässä kauppakeskus Triplasta. Kiinteistössä on tasokas lounasravintola Factory. Julkiset liikenneyhteydet ovat erinomaiset.

Kysy lisää numerosta 044 723 4700 tai info@bref.fi. Palvelumme on tilanhakijoille ilmainen.

Perustiedot

Kaupunginosa
Pasila
Kerros
1
Toimitilan tyyppi
Toimistotila
Tilan pinta-ala
78,5 m²
Kokonaispinta-ala
78,5 m²
Kunto
Hyvä
Parveke
Ei
Asunnossa sauna
Ei
Palvelut
Kauppakeskus Triplan monipuoliset palvelut, erikoisliikkeet ja lounasravintolat kivenheiton päässä. Kiinteistössä on monipuolinen Factory ravintola ja aulapalvelut.
Lisätiedot
Tavarahissi

Hinta

Vuokra/kk

Talon ja tontin tiedot

Rakennuksen tyyppi
Toimistotila
Hissi
Kyllä
Taloyhtiössä on sauna
Ei
Energiatodistus
Ei lain edellyttämää energiatodistusta
Liikenneyhteydet
Erinomaiset julkisen liikenteen yhteydet. Pasilan juna-asema lähellä. Hyvät raitiovaunu- ja bussiyhteydet.