1 560 € / kk77,5 m²

Maapadontie 2, Oulunkylä, Helsinki

Vuokra/kk
1 560 € / kk
Pinta-ala
77,5 m²
Toimitilan tyyppi
Liiketila
Kaupunginosa
Oulunkylä
Kaupunki
Helsinki

Vuokrataan liiketila

UUDISKOHDE!

Helsingin kaupunki vuokraa liiketilan Oulunkylässä. Tämä uusi ja valoisa tila sijaitsee erinomaisella paikalla, hyvien kulkuyhteyksien vierellä. Tilaan on oma sisäänkäynti Käskynhaltijantien puolelta.

Vuokra 1 560 €/kk + arvonlisävero. Kiinteistön omistaa Heka.

Kohteen tiedot:

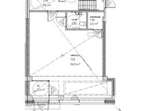
• Pinta-ala: 77,50 m².

• Sijainti: Oulunkylä.

* Pikaraitiolinja 300 m, lähin bussipysäkki 300 m.

• Tilan kuvaus: Suuri huonetila keittiöllä, sosiaalitila ja WC.

• Sopimus: Toistaiseksi voimassa oleva sopimus 3kk irtisanomisajalla. Vesi ja lämpö kuuluvat vuokraan. Sähkösopimuksen tekee vuokralainen.

• Huomio: Kohdetta ei vuokrata ravintola- tai pizzeriakäyttöön, eikä kokoontumis- tai kerhotilaksi.

Perustiedot

Sijainti
Maapadontie 2, 00640 Helsinki
Kaupunginosa
Oulunkylä
Kohdenumero
23474746
Toimitilan tyyppi
Liiketila
Tilan pinta-ala
77,5 m²

Hinta

Vuokra/kk
1 560 € / kk

Talon ja tontin tiedot

Rakennuksen tyyppi
Liiketila