291 m²

Annankatu 34, Kamppi, Helsinki

Pinta-ala
291 m²
Toimitilan tyyppi
Liiketila
Kaupunginosa
Kamppi
Kaupunki
Helsinki

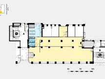
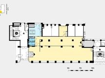
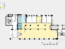
Nyt vuokrattavissa liiketila suurilla ikkunoilla ja omalla sisäänkäynnillä. Tila koostuu suuresta avotilasta, toimivasta taukotilasta sekä erillisestä neuvotteluhuoneesta. Lisäksi tilassa on kaksi wc-tilaa ja pieni varasto.

Elias Paalasen piirtämä kiinteistö on valmistunut 1950-luvulla. Rakennuttajansa Rautakirjan mukaan alun perin Lehtitaloksi nimetyn punatiilisen toimistorakennuksen julkisivu on alkuperäisessä asussaan. Vanhaan ei kuitenkaan ole jääty vaan monipuoliset sisätilojen uudistukset mahdollistavat modernin työskentelyn mm. monitilatoimistoissa.

Kamppi on mahdollisesti nykyään Helsingin keskustan eläväisintä aluetta – monipuolinen liike-elämän, kaupan, palveluiden ja liikkuvuuden keskittymä. Suoraan Kampin kauppakeskusta vastapäätä sijaitsevassa Kampin Huipussa ydinkeskustan palvelut ja liikenneyhteydet ovat kivenheiton päässä. Taloon on myös hissiyhteys Forumin parkkihallista. Lisää parkkitilaa löytyy ydinkeskustan lukuisista pysäköintilaitoksista. Kiinteistössä on myös polkupyörien pysäköintipaikat ja sosiaalitilat suihkuineen. Aulan yhteydessä on runsaasti vuokrattavia kokoustiloja ja talossa palvelee erinomainen lounasravintola.

Me Croisettella autamme teitä löytämään teille parhaat tilat! Olemme puolueettomia asiantuntijoita ja tunnemme toimitilamarkkinat, talot sekä tilat vankalla kokemuksella. Meillä on välityksessä kaikki toimitilat ja tiedämme niiden alustavat vuokratasot.

Tehtävämme on tehdä toimitilahaustanne onnistunutta ja helppoa. Saamme palkkiomme kiinteistönomistajalta, joten sinulle palvelumme on täysin maksuton. Jos kiinnostuit, ota yhteyttä sähköpostitse osoitteeseen vuokraus@croisette.fi tai soita numeroon +358 4 00585857.

Perustiedot

Sijainti
Annankatu 34, 00100 Helsinki
Kaupunginosa
Kamppi
Toimitilan tyyppi
Liiketila
Tilan pinta-ala
291 m²
Kokonaispinta-ala
291 m²

Hinta

Vuokra/kk

Talon ja tontin tiedot

Rakennuksen tyyppi
Liiketila
Energialuokka
E2013