425 m²

Simonkatu 9, Kamppi, Helsinki

Pinta-ala
425 m²
Toimitilan tyyppi
Liiketila
Kaupunginosa
Kamppi
Kaupunki
Helsinki

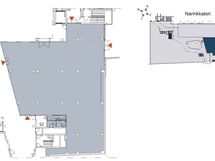
Liiketila Simonkentän elävässä Kauppakujassa.

Perustiedot

Sijainti
Simonkatu 9, 00100 Helsinki
Kaupunginosa
Kamppi
Toimitilan tyyppi
Liiketila
Tilan pinta-ala
425 m²
Kokonaispinta-ala
425 m²

Hinta

Vuokra/kk

Talon ja tontin tiedot

Rakennuksen kuvaus
Tilassa on suuret näyteikkunat sekä vilkkaalle Kampin ja Forumin väliselle kävelykadulle että Narinkkatorin suuntaan. Tila ei sovellu ravintolaksi. Simonkentän Kauppakuja on uudistunut moderniksi, valoisaksi ja vetovoimaiseksi asiointiympäristöksi, jossa ostokset ja elämykset kohtaavat. Esteetön rakennus palvelee monipuolisesti sekä paikallisia että matkailijoita. Saavutettavuus on erinomainen: metro, raitiovaunut ja bussit ovat aivan vieressä, ja autoilijoille on suora yhteys Forumin ja Kampin pysäköintihalleihin.
Rakennuksen tyyppi
Liiketila
Energialuokka
Ei lain edellyttämää energiatodistusta