120 m²

Fredrikinkatu 55, Kamppi, Helsinki

Pinta-ala
120 m²
Kerros
4
Toimitilan tyyppi
Toimistotila
Kaupunginosa
Kamppi
Kaupunki
Helsinki

FREDRIKINKATU 55 - toimistotila 120m2

HYVÄ HINTA-LAATUSUHDE !!!

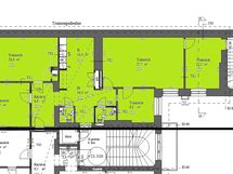
Tämä juuri remontoitu toimistotila sijaitsee rakennuksen 4. kerroksessa. Tilakokonaisuuteen kuuluu 5 työskentelytilaa, joista pari hieman isompikokoista- ja kolme pienempää tilaa. Hyvän kokoinen design-keittiö, mihin mahtuu ruokailupöytä ja kaksi WC-tilaa.

Tietoliikenneyhteys valokuidulla. Painovoimainen ilmanvaihto.

HUOM! Mahdollisuus vuokrata 1 kpl autopaikkoja.

Lisätiedot ja kohdenäytöt: p. 040 7070 321 / Heikki

Kiinteistön kuvaus: G. W. Nyberg vuonna 1914 suunnittelema Fredrikinkatu 55 kiinteistö sijaitsee lyhyen kävelymatkan päässä Kampin Keskuksesta. Rakennus on kaunis fasadin lisäksi myös porrashuoneeltaan.

Alueella erittäin runsas palveluntarjonta monipuolisine ruokailumahdollisuuksineen.

Perustiedot

Kaupunginosa
Kamppi
Kerros
4
Toimitilan tyyppi
Toimistotila
Tilan pinta-ala
120 m²
Kokonaispinta-ala
120 m²
Lisätiedot
IT-verkko: Kyllä
Tiedustelut
Ota yhteyttä 020 7290 710 tai asiakaspalvelu@premises.fi
Postitoimipaikka
Helsinki

Hinta

Vuokra/kk

Talon ja tontin tiedot

Uudiskohde
Ei
Rakennuksen tyyppi
Toimistotila
Rakennusvuoden lisätiedot
1914
Liikenneyhteydet
Kampin metro- ja bussiterminaali lyhyen kävelymatkan päässä. Myös raitiovaunupysäkit ihan vieressä. Useat läheiset pysäköintilaitokset palvelevat henkolöautoilijoita.