137,5 m²

Hankasuontie 9, Konala, Helsinki

Pinta-ala
137,5 m²
Kerros
1
Rakennusvuosi
1969
Toimitilan tyyppi
Varastotila
Kaupunginosa
Konala
Kaupunki
Helsinki

Tuotanto-/varastotilaa Helsingin Konalassa.

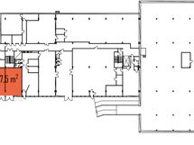
Vuokrataan 137,5 m² katutason varasto-/tuotantotila, joka koostuu kahdesta vierekkäisestä varastosta sekä pienestä toimistohuoneesta. Tilojen välillä pääsee kulkemaan myös sisäkautta. Kumpaankin tilaan oma pariovi suoraan pihalta. Ei sovellu autopesu- tai korjaamotoimintaan.

Pienteollisuustoimintaan sopiva kiinteistö on rakennettu vuonna 1969 ja peruskorjattu vuosien 2009-2010 aikana. Rakennuksessa on varasto-, tuotanto- ja toimistotiloja kahdessa kerroksessa, koulutustiloja ja matalaa varastotilaa kellarikerroksessa. Kiinteistössä on lastauslaituri ja tavarahissi, jonka kantavuus on 3500kg.

Kysy lisää numerosta 044 723 4700 tai info@bref.fi. Palvelumme on tilanhakijoille ilmainen.

Perustiedot

Kaupunginosa
Konala
Kerros
1
Toimitilan tyyppi
Varastotila
Tilan pinta-ala
137,5 m²
Kokonaispinta-ala
137,5 m²
Kunto
Hyvä
Parveke
Ei
Asunnossa sauna
Ei
Palvelut
Läheltä löytyy lounasravintola sekä S-Market. Kauppakeskus Ristikko n. 2,5km päässä.
Lisätiedot
Tavarahissi

Hinta

Vuokra/kk

Talon ja tontin tiedot

Rakennuksen tyyppi
Varastotila
Rakennusvuosi
1969
Taloyhtiössä on sauna
Ei
Energiatodistus
Ei lain edellyttämää energiatodistusta
Liikenneyhteydet
Vihdintien varrella. Hyvät julkisen liikenteen yhteydet. Autohalli ja pihapaikkoja.