395 m²

Sentnerikuja 2, Lassila, Helsinki

Pinta-ala
395 m²
Toimitilan tyyppi
Toimistotila
Kaupunginosa
Lassila
Kaupunki
Helsinki

Monikäyttöistä ja modernia toimistotilaa keskeisellä sijainnilla.

Helsingin Lassilanlinna on täysin uudistettu kiinteistö jossa tilat, piha-alue ja koko kiinteistö peruskorjattu uutta vastaavaksi. Alueella erinomaiset kulkuyhteydet autolla ja julkisilla. Autopaikkoja tarjolla runsaasti pysäköintihallista.

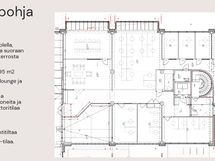
Monikäyttöistä toimistotilaa kahdessa kerroksessa (300m2 - 1000m2). ´

Lisätiedot ja näytöt valtteri.mauno@kiinteistotahkola.fi tai 040 3500 442

Perustiedot

Kaupunginosa
Lassila
Toimitilan tyyppi
Toimistotila
Tilan pinta-ala
395 m²
Kunto
Uusi
Lisätietoa vapautumisesta
Heti
Parveke
Ei
Vuokrataan kalustettuna
Ei
Asunnossa sauna
Ei
Muut ehdot
Vuokranmaksupäivä kk:n 5. päivä
Kohde on
Kiinteistö

Hinta

Myyntihinta
Vuokra/kk
Lisätietoa vakuudesta
1kk:n vuokran suuruinen

Muut maksut

Vesimaksu
/ kk

Talon ja tontin tiedot

Uudiskohde
Ei
Rakennuksen tyyppi
Toimistotila
Hissi
Kyllä
Taloyhtiössä on sauna
Ei
Energialuokka
B2018
Energiatodistus
Kyllä
Lisätietoja lämmityksestä
K

Tilat ja materiaalit

Pysäköintitilan kuvaus
Ei