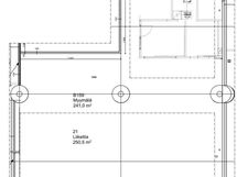
250 m²

Itämerenkatu 21, Ruoholahti, Helsinki

Pinta-ala
250 m²
Rakennusvuosi
1978
Toimitilan tyyppi
Liiketila
Kaupunginosa
Ruoholahti
Kaupunki
Helsinki

Vuokrataan liiketila 250 m² Ruoholahti

Vuokrataan liiketila Ruoholahdesta erinomaiselta paikalta, oma sisäänkäynti.

Tila ei sovellu ravintolaksi

Aarno Toffer aarno.toffer@toimitilapalvelu.fi 044 9781393

Perustiedot

Kaupunginosa
Ruoholahti
Kohdenumero
24430572
Toimitilan tyyppi
Liiketila
Tilan pinta-ala
250 m²

Hinta

Vuokra/kk

Talon ja tontin tiedot

Rakennuksen tyyppi
Liiketila
Rakennusvuosi
1978
Liikehuoneistojen lukumäärä
19
Liikehuoneistojen pinta-ala
1,11 ha
Lisätietoja lämmityksestä
Vesikeskuslämmitys
Tontin omistus
Oma