1,00 ha

Hakakalliontie 13, Hakakallio, Hyvinkää

Pinta-ala
1,00 ha
Kerros
1
Toimitilan tyyppi
Tuotantotila
Kaupunginosa
Hakakallio
Kaupunki
Hyvinkää

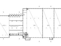
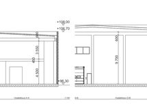
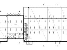
Vuokrataan erinomaiset tilat tuotantoon, logistiikkaan ja varastointiin. Kiinteistössä on muun muassa 12 lastaustaskua, lastaussilta kahdella nosto-ovella sekä ajoramppi nosto-ovella. Lisäksi kokonaisuuteen kuuluu toimisto-, neuvottelu- sekä sosiaalitilat. Tilat voidaan vuokrata myös osissa tarpeen mukaan.

Erinomainen sijainti ja olosuhteet palvella asiakkaita varasto- ja logistiikkatarpeissa! Vieressä kulkee Hangonväylä, Tampereen valtatielle 5,7 km ja Vuosaaren satamaan noin 40 minuutin ajomatka. Tontilla hyvin tilaa raskaalle liikenteelle.

Lisätietoja numerosta 020 7290 710. Lisää kohteita osoitteessa www.premises.fi.

Kohteella ei ole lain edellyttämää energiatodistusta tai energialuokka ei tiedossa.

Kiinteistön kuvaus: akakallion teollisuusalueella sijaitseva tontti mahdollistaa lisärakentamisen 12000 m2 teollisuus-, logistiikka- tai varastokäyttöön. Toteutamme rakennusprojektimme aina asiakaslähtöisesti - nyt on siis mahdollisuus vaikuttaa! Luvat haetaan asiakkaan lähtökohdista. Toteutus avaimet käteen-periaatteella.

Perustiedot

Kaupunginosa
Hakakallio
Kerros
1
Toimitilan tyyppi
Tuotantotila
Tilan pinta-ala
1,00 ha
Kokonaispinta-ala
1,00 ha
Tiedustelut
Ota yhteyttä 020 7290 710 tai asiakaspalvelu@premises.fi
Postitoimipaikka
HYVINKÄÄ

Hinta

Vuokra/kk

Talon ja tontin tiedot

Uudiskohde
Ei
Rakennuksen tyyppi
Tuotantotila
Liikenneyhteydet
Hakakalliontie 13:n sijainti kehittyvällä alueella ja Helsinki – Hämeenlinna – Tampere -moottoritien E12 ja valtatie 25:n solmukohdassa luo erinomaiset olosuhteet palvella asiakkaita varasto- ja logistiikkatarpeissa.