4 130 € / kk565 m²

Tuottajankatu 10, Nummenkylä, Järvenpäähalli + k + wc + kph

Vuokra/kk
4 130 € / kk
Vapautuu
Heti vapaa
Pinta-ala
565 m²
Toimitilan tyyppi
Tuotantotila
Kaupunginosa
Nummenkylä
Kaupunki
Järvenpää

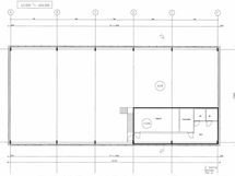
Korkea tuotanto/varastohalli 565 m2, Järvenpää

Vuokrataan siisti ja valoisa monitoimihalli Järvenpään Nummenkylässä. Halli on 7 m korkea, varusteltu 2:lla nosto-ovella, jossa on etuovella on 4 m korkeus ja sivuovi on 2,5 m korkea. Vuokrattava huoneistoala on 565 m2.

Taukotila keittiöllä, saniteettitilat ja toimistotila on 2.kerroksessa varasto/väestösuojan päällä. Tilavalla piha-alueella on runsaasti pysäköintipaikkoja ja tilaa ulkovarastointi mm kontille.

Perustiedot

Kaupunginosa
Nummenkylä
Kohdenumero
24350553
Toimitilan tyyppi
Tuotantotila
Tilan pinta-ala
565 m²
Pinta-alojen lisätiedot
Korkean hallin pinta-ala on noin 425 m2, katutason varasto/väestösuoja 60 m2,
2.kerrosksen toimisto/sosiaalitilat tilat noin 78 m2.
Huoneiston kokoonpano
halli + k + wc + kph
Vapautuu
Heti vapaa
Keittiö
Keittiö
Vuokralaistyyppi
Päävuokralainen

Hinta

Vuokra/kk
4 130 € / kk
Lisätietoa vakuudesta
3 kk vuokraa vastaava pantti ALV 0%
Vuokra-aika
Toistaiseksi voimassa oleva. Ensimmäinen irtisanomisajan ajankohta 3 kuukauden kuluttua

Muut maksut

Lämmityskustannukset
kulutuksen mukaan, omalla sähkösopimuksella
Vesimaksun lisätiedot
Kulutuksen mukaan, oma mittari
Sähkömaksu
Vuokralainen tekee sähkösopimuksen

Talon ja tontin tiedot

Rakennuksen tyyppi
Tuotantotila