300 m²

Onkapannu 3, Savela, Jyväskylä

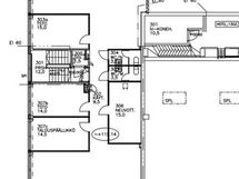
Pinta-ala
300 m²
Kerros
3
Toimitilan tyyppi
Toimistotila
Kaupunginosa
Savela
Kaupunki
Jyväskylä

Vuokrattavana toimistotila, osa tiloista yhteiskäytössä toisen vuokralaisen kanssa (keittiö, taukotila ja wc:t)

Lisätietoja numerosta 020 7290 710. Lisää kohteita osoitteessa www.premises.fi.

Kohteella ei ole lain edellyttämää energiatodistusta tai energialuokka ei tiedossa.

Perustiedot

Kaupunginosa
Savela
Kerros
3
Toimitilan tyyppi
Toimistotila
Tilan pinta-ala
300 m²
Kokonaispinta-ala
300 m²
Tiedustelut
Ota yhteyttä 020 7290 710 tai asiakaspalvelu@premises.fi
Postitoimipaikka
Jyväskylä

Hinta

Vuokra/kk

Talon ja tontin tiedot

Uudiskohde
Ei
Rakennuksen tyyppi
Toimistotila