3 202 € / kk276 m²

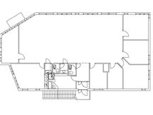
Polttolinja 21, Kuokkala, JyväskyläAvokonttori + neuvottelutila + 4 th + k & taukotila + 2 wc + 2 varasto/sostila + siivouskomero

Vuokra/kk
3 202 € / kk
Vapautuu
Heti vapaa
Pinta-ala
276 m²
Kerros
2 / 2
Rakennusvuosi
1991
Toimitilan tyyppi
Toimistotila
Kaupunginosa
Kuokkala
Kaupunki
Jyväskylä

Annetaan vuokralle juuri remontoitu viihtyisä toimitila!

Vuokralle annetaan juuri pintaremontoitu viihtyisä ja tilava toimitila Jyväskylästä, Kuokkalan keskustasta!

Toimitila avautuu suureen avaraan alueeseen, joka toimii avokonttorina, odotusaulana tai oleskelualueena. Tilan sivuille sijoittuvat neljä erillistä työhuonetta, neuvottelutila sekä tilava taukohuone keittiöineen. Lisäksi toimitilassa on kaksi erillistä varasto- tai sosiaalitilaa sekä kaksi erillistä wc:tä. Kohde soveltuukin monenlaiseen käyttöön - tule käymään paikan päällä niin näet, olisiko se paras juuri teille!

Kuokkalan keskustassa asiakaspysäköinti on helppoa - kiekkopaikkoja on kiinteistön välittömässä läheisyydessä runsaasti. Lisäksi voitte halutessanne vuokrata meiltä toimitilan yhteydessä myös autopaikkoja.

Perustiedot

Kaupunginosa
Kuokkala
Kohdenumero
17662941
Kerros
2 / 2
Toimitilan tyyppi
Toimistotila
Tilan pinta-ala
276 m²
Huoneiston kokoonpano
Avokonttori + neuvottelutila + 4 th + k & taukotila + 2 wc + 2 varasto/sostila + siivouskomero
Kunto
Hyvä
Kunnon lisätiedot
Toimitila remontoitu syksyn 2023 aikana
Vapautuu
Heti vapaa
Lisätietoa vapautumisesta
Heti vapaa
Keittiö
Keittiö
Vuokralaistyyppi
Päävuokralainen

Hinta

Vuokra/kk
3 202 € / kk

Muut maksut

Lämmityskustannukset
Kohteessa kaukolämpö, lämmityskustannukset sisältyvät vuokraan.
Vesimaksun lisätiedot
Neuvoteltavissa - riippuu toiminnan luonteesta.
Sähkömaksu
Vuokralainen tekee sähkösopimuksen

Talon ja tontin tiedot

Rakennuksen tyyppi
Toimistotila
Rakennusvuosi
1991
Kerroksia
2
Tontin omistus
Vuokralla