483,4 m²

Hannikaisenkatu 41, Keskusta, Jyväskylä17h + k + wc (3kpl) + suihku + auloja + säilytystiloja

Pinta-ala
483,4 m²
Huoneita
17
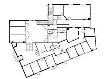
Kerros
1 / 4
Rakennusvuosi
1991
Toimitilan tyyppi
Liiketila
Kaupunginosa
Keskusta
Kaupunki
Jyväskylä

Vuokrataan liiketila Jyväskylän keskusta-alueelta

Tilava (noin 483,4 m2) liiketila Jyväskylän keskustassa.

Liiketila sijaitsee katutasossa, vastapäätä Matkakeskusta. Hyvät asiakaspysäköinti mahdollisuudet, sekä helposti pääsy julkisilla liikennevälineillä ja kevyen liikenteen yhteyksillä.

Reilusti ikkuna pinta-alaa Hannikaisenkadun ja Väinönkadun suuntiin.

Katutasolta sisäänkäynti ns. sisääntuloaulaan. Tilat ovat osittain porrastettu.

Tontilta vuokrattavissa autopaikkoja yhteispysäköinnistä. Lähettyvillä myös kaksi parkkitaloa.

Sopii mainiosti monenlaiseen yritystoimintaan. Aiemmin tilassa toiminut Hierojakoulu. Mahdollista myös vuokrata lisätilaa samasta kerroksesta.

Katso lisää www.kauppalaisseura.fi / 014216041

Perustiedot

Kaupunginosa
Keskusta
Kohdenumero
22066008
Kerros
1 / 4
Toimitilan tyyppi
Liiketila
Tilan pinta-ala
483,4 m²
Pinta-alojen lisätiedot
Pinta-alaa ei tarkistusmitattu, vuokran suuruus ei määräydy pinta-alan perusteella.
Huoneiston kokoonpano
17h + k + wc (3kpl) + suihku + auloja + säilytystiloja
Huoneita
17
Kunto
Tyydyttävä
Lisätietoa vapautumisesta
Heti vapaa
Keittiö
Keittiö
Keittiön varusteet
Astianpesukone, Laminaattitasot, Jääkaappi
Kylpyhuoneen varusteet
Suihku, Erillinen WC (3kpl)
Ikkunoiden suunta
Ikkunoita itään, Ikkunoita etelään
Vuokralaistyyppi
Päävuokralainen

Hinta

Vuokra/kk
Lisätietoa vakuudesta
Vuokra ja vuokravakuus sopimuksen mukaan

Muut maksut

Vesimaksun lisätiedot
Mittarin mukaan
Sähkömaksu
Vuokralainen tekee sähkösopimuksen

Talon ja tontin tiedot

Taloyhtiön nimi
Kiinteistö Oy Jyväskylän Hannikaisenkatu 41
Rakennuksen tyyppi
Liiketila
Rakennusvuosi
1991
Kerroksia
4
Rakennusmateriaali
Betoni, Teräs
Ilmanvaihto
Koneellinen, poisto huippuimurilla
Kiinteistönhoito
360 Palvelut Oy
Isännöinti
Oiva Isännöinti Oy Jani Lehtonen
Liikenneyhteydet
Bussipysäkki lähellä, Taksitolppa lähellä, Sujuvat yhteydet omalla autolla, Juna-asema lähellä, Paljon parkkitilaa
Lämmitys
Kaukolämpö
Lämmönjakelu
Vesikiertoinen patterilämmitys
Lisätietoja lämmityksestä
Vesikeskuslämmitys, osassa tiloista viilennys.
Tontin omistus
Oma

Tilat ja materiaalit

Pintamateriaalit
Laminaatti (eteisaula), Muovimatto