306 m²

Zatelliitintie 17, Kempele

Pinta-ala
306 m²
Kerros
1
Toimitilan tyyppi
Liiketila
Kaupunki
Kempele

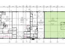
Vuokrataan vapautumassa oleva 306m2 liiketila Zatelliitintie 17 kiinteistössä. Mahdollisuuksien tila, tila on muokattavissa käyttäjän tarpeiden mukaan. Tällä hetkellä tilassa toimii Würth.

Pihassa erinomaiset pysäköintimahdollisuudet.

Tervetuloa Zatelliittipark-kiinteistöön Zatelliitin alueelle, Kempeleen sydämeen, jossa uudehkot toimitilat ja loistava näkyvyys moottoritielle tekevät kiinteistöstä houkuttelevan paikan yrityksille. Sijainti on toimiva kehittyvällä, dynaamisella alueella hyvien liikenneyhteyksien äärellä.

Lisätietoja 020 7290 710. Lisää kohteita osoitteesta www.premises.fi.

Kohteella ei ole lain edellyttämää energiatodistusta tai energialuokka ei tiedossa.

Perustiedot

Kerros
1
Toimitilan tyyppi
Liiketila
Tilan pinta-ala
306 m²
Kokonaispinta-ala
306 m²
Tiedustelut
Ota yhteyttä 020 7290 710 tai asiakaspalvelu@premises.fi
Postitoimipaikka
Kempele

Hinta

Vuokra/kk

Talon ja tontin tiedot

Uudiskohde
Ei
Rakennuksen tyyppi
Liiketila
Liikenneyhteydet
Moottoritie E8:n läheisyys ja kiinteistön runsaat parkkipaikat mahdollistavat sujuvan saapumisen autoilijoille. Bussipysäkki noin 1 km Kempeleen rautatieaseman 1,5 km Lentokenttä noin 10 km