Varasto, autotalli, harraste-, toimitila 53 m² Kerava 743 €/kk
Vuokrattavana KOY Keravan Talliosake 3 monikäyttöinen varasto, autotalli, harraste-, toimitila 4. Tilassa jo valmiina parvi sekä wc.
Suosittu Keravan Talliosake 3 sijaitsee Keravan eteläpuolella, Ali-Keravan teollisuuspainotteisessa kaupunginosassa, aivan Kerava – Helsinki -junaradan varrella, vain 3 minuutin ajomatkan päässä Keravan keskustasta. Viidessä minuutissa olet jo Lahden moottoritiellä (E75).
Talliosakkeet ovat laadukkaita sekä hyvin varusteltuja, soveltuen harraste-, varasto- ja yritystilakäyttöön.
Tila on sähkölämmitteinen. Vuokralainen tekee tilaan oman sähkösopimuksen. Vesi- ja sähkömaksu kulutuksen mukaan. Yritysasiakkaalle vuokraan lisätään alv 25,5%. Luottotiedot tarkistetaan.
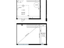
Tilamitat: 5,95 (Pituus) 7,05 (Leveys) 5,00 (Korkeus)
Ovimitat: 3,40 (Leveys) 3,90 (Korkeus)
Käyttötarkoitusesimerkkejä:
- autotalli
- moottoripyörätalli
- mönkijätalli
- varastotila
- harrastetila
- kimppatalli
- toimitila
- yrityksen työtarvikevarasto / kalustovarasto
Tila ei sovellu autokorjaamoksi eikä autopesulaksi.
Ota yhteyttä. Kerron mielelläni lisää.
Talliosake toimii täysin digitaalisesti alusta loppuun vuokra- tai kauppasopimuksen prosessin aikana.
Vuokrattavana myös työ- ja tuotantotiloja. Kysy lisää.
Kaikki Keravan seudun vuokrattavat tilat löydät täältä: https://talliosake.fi/vuokrattavat-tilat/?kaupunki=Kerava